Проект одноэтажной бани СБ179
Дом подходит для:
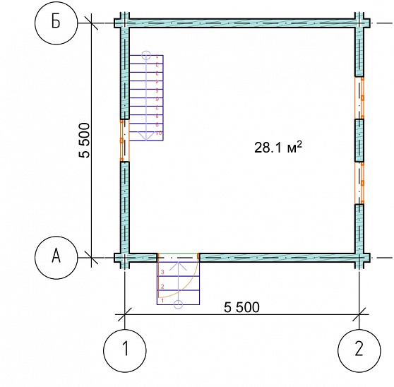
Площадь
47 м 2
Размер дома:
6x9
Этажей:
1
Спален:
1
Санузел:
1
Гараж:
Нет
Баня:
Нет
Терраса:
Да
Панорамные окна:
Нет
Мастер-спальня:
Нет
Планировка
Характеристики
- Общая площадь: 47 м2
- Жилая площадь: 22 м2
- Количество этажей: 1
- Гараж: нет
- Площадь кровли: 54 м2
- Форма: Квадратные дома
- Тип кровли: Дома с двускатной крышей
- Пристрой: Дома с террасой
- Отделка: Без отделки
- Размер: 6x9
Материалы и перечень работ
- В стоимость не входит
- Брус 150х150 профилированный естественной влажности
- Металлочерепица фирмы GRAND LINE (огромный выбор цвета и форм волны)
- В стоимость не входит
- В стоимость не входит
- В стоимость не входит
- В стоимость не входит
- Брус 150х150 профилированный естественной влажности
- Металлочерепица фирмы GRAND LINE (огромный выбор цвета и форм волны)
- В стоимость не входит
- В стоимость не входит
- В стоимость не входит
Что еще входит в стоимость:
Отправьте свои контакты и мы расчитаем вам смету
Скорее всего вам подойдут следующие проекты домов:
Дом подходит для:
Дом подходит для:
Проект одноэтажного дома Дом из оцилиндрованного бревна 6,0х6,0 м, пятистенок под ключ (проект № 4 ИСТЬБА)
Семья с одним ребенком
Дом подходит для:
Дом подходит для:













