Проект двухэтажного дома Северный зодчий
Площадь
146 м 2
Размер дома:
9x10
Этажей:
2
Спален:
4
Санузел:
0
Гараж:
Нет
Баня:
Нет
Терраса:
Нет
Панорамные окна:
Нет
Мастер-спальня:
Нет
О проекте
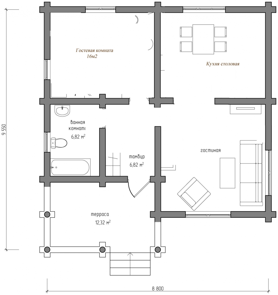
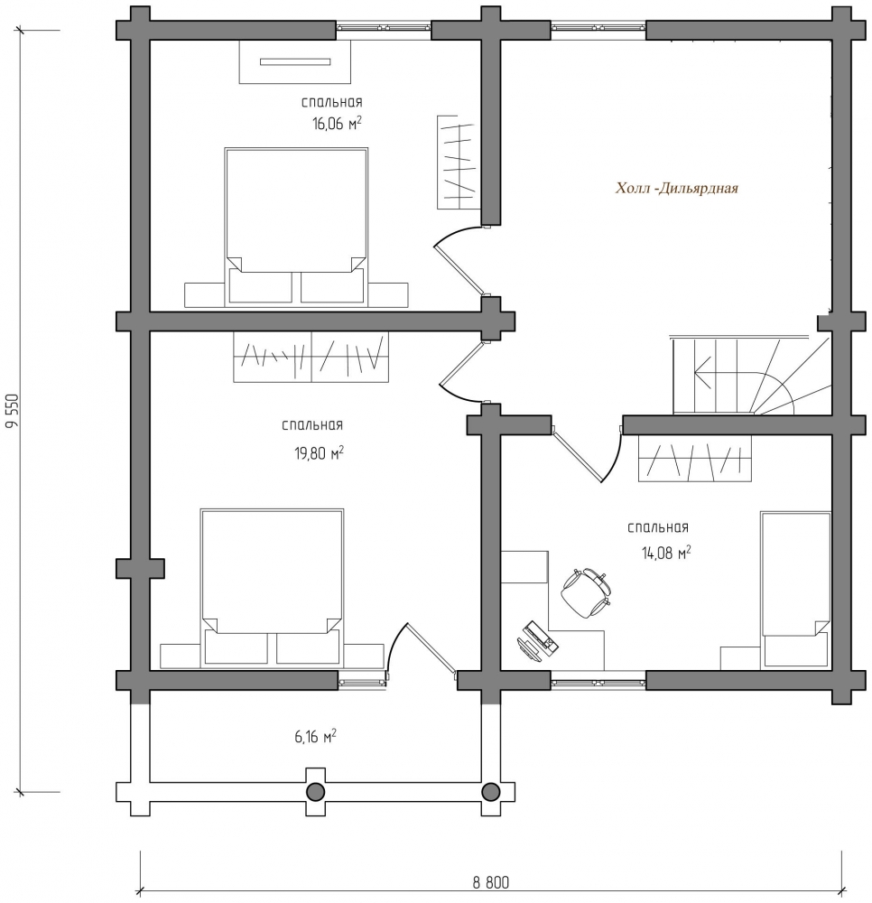
Современное жильё с удобной планировкой, стильным интерьером и тёплой атмосферой, где всё продумано для комфорта и гармоничного проживания.Суммарная площадь 53 м² создаёт атмосферу простора. Ондулин придаёт дому выразительность и надёжность. Дом спроектирован в духе дома в классическом стиле. Двухэтажная современная планировка делает зонирование более логичным.Характеристики
- Общая площадь: 146 м2
- Количество этажей: 2
- Стиль, разновидность: Дома в стиле Русский
- Форма: Широкие дома
- Тип кровли: Дома с двускатной крышей
- Отделка: Без отделки
- Размер: 9x10
Отправьте свои контакты и мы расчитаем вам смету
Скорее всего вам подойдут следующие проекты домов:
Дом подходит для:
Дом подходит для:
Дом подходит для:












