Проект одноэтажного дома Шале из бруса камерной сушки
Площадь
114 м 2
Размер дома:
10x14
Этажей:
1
Спален:
2
Санузел:
0
Гараж:
Нет
Баня:
Нет
Терраса:
Нет
Панорамные окна:
Нет
Мастер-спальня:
Нет
О проекте
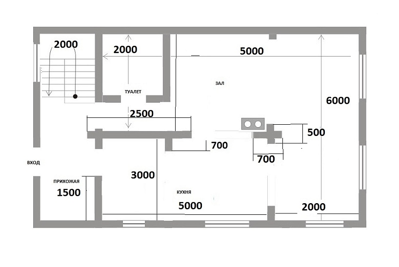
Здесь даже воздух наполнен уютом, а каждый уголок дарит покой. Рационально распределённые 86 м² делают жильё удобным. Стены из бруса хорошо держат тепло и защищают от шума. Архитектура выполнена в стиле дома в стиле русский. Наличие 2 спальни удовлетворит запросы семьи с детьми.Характеристики
- Общая площадь: 114 м2
- Количество этажей: 1
- Стиль, разновидность: Дома в ином стиле
- Форма: Прямоугольные дома
- Тип кровли: Дома с двускатной крышей
- Отделка: Без отделки
- Размер: 10x14
Отправьте свои контакты и мы расчитаем вам смету
Скорее всего вам подойдут следующие проекты домов:
Дом подходит для:
Дом подходит для:
Дом подходит для:












