Проект двухэтажного дома Шишкино
Площадь
200 м 2
Размер дома:
12x9
Этажей:
2
Спален:
3
Санузел:
0
Гараж:
Нет
Баня:
Нет
Терраса:
Нет
Панорамные окна:
Нет
Мастер-спальня:
Нет
О проекте
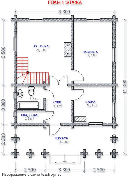
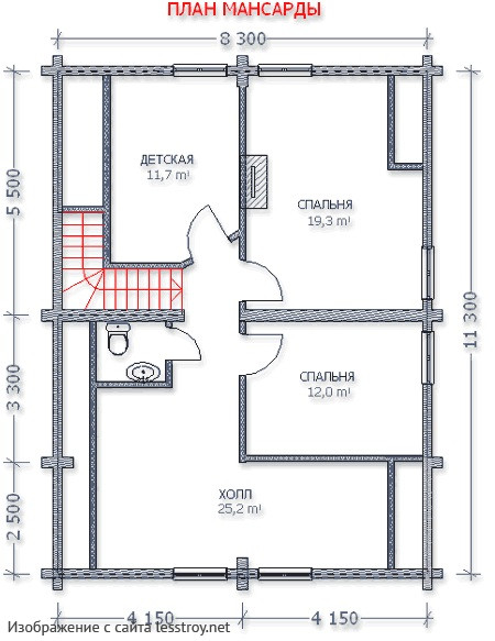
Дом отличается лаконичной архитектурой и теплой атмосферой интерьеров.Дом с 164 м² — отличное начало для загородной жизни. Это двухэтажная структура, которая обеспечивает практичное распределение комнат. Проект включает 3 спальни — удобно для семьи. Дом спроектирован в духе дома в стиле русский.Характеристики
- Общая площадь: 200 м2
- Количество этажей: 2
- Стиль, разновидность: Дома в стиле Прованс
- Форма: Квадратные дома
- Тип кровли: Дома с многощипцовой крышей
- Отделка: Без отделки
- Размер: 12x9
Отправьте свои контакты и мы расчитаем вам смету
Скорее всего вам подойдут следующие проекты домов:
Дом подходит для:
Дом подходит для:
Дом подходит для:










