Проект двухэтажного дома Шри Ланка
Площадь
145 м 2
Размер дома:
Этажей:
2
Спален:
4
Санузел:
0
Гараж:
Нет
Баня:
Нет
Терраса:
Нет
Панорамные окна:
Нет
Мастер-спальня:
Нет
О проекте
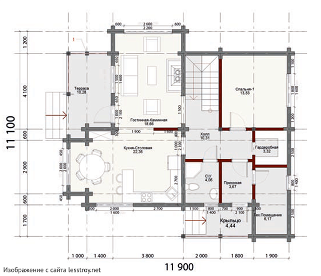
Пространство, в котором не приходится жертвовать удобством ради красоты. 145 м² — идеальная отправная точка для домашнего уюта. Архитектура выполнена в стиле дома в классическом стиле. Наличие 4 спальни удовлетворит запросы семьи с детьми. Материал кровли — металлочерепица, что добавляет зданию индивидуальность.Характеристики
- Общая площадь: 145 м2
- Количество этажей: 2
- Стиль, разновидность: Дома в ином стиле
- Форма: Квадратные дома
- Тип кровли: Дома с многощипцовой крышей
- Отделка: Без отделки
Отправьте свои контакты и мы расчитаем вам смету
Скорее всего вам подойдут следующие проекты домов:
Дом подходит для:
Дом подходит для:
Дом подходит для:











