Проект двухэтажного дома SIP 14
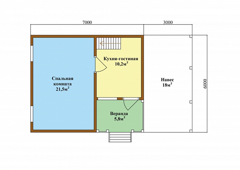
Площадь
64 м 2
Размер дома:
Этажей:
2
Спален:
2
Санузел:
0
Гараж:
Нет
Баня:
Нет
Терраса:
Нет
Панорамные окна:
Нет
Мастер-спальня:
Нет
О проекте
Дом с автоматической системой полива растений.Площадь дома — 64 м²: компактно, но просторно. Архитектура выполнена в стиле дома в стиле минимализм. Двухэтажная грамотная планировка разграничивает спальные и дневные помещения. Стены из Каркас хорошо держат тепло и защищают от шума.Характеристики
- Общая площадь: 64 м2
- Количество этажей: 2
- Стиль, разновидность: Дома в стиле Минимализм
- Форма: Прямоугольные дома
- Тип кровли: Дома с двускатной крышей
- Отделка: Без отделки











