Проект двухэтажного дома Солнечный
Площадь
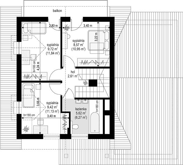
146 м 2
Размер дома:
9x16
Этажей:
2
Спален:
4
Санузел:
0
Гараж:
Нет
Баня:
Нет
Терраса:
Нет
Панорамные окна:
Нет
Мастер-спальня:
Нет
О проекте
Дом из газобетона площадью 146 м² сочетает в себе легкость материала и прочность конструкции. Современный фасад с четкими линиями выглядит стильно и лаконично. Внутренние помещения спланированы с учетом эргономики и комфорта. Проект подойдет для тех, кто предпочитает современные строительные решения.Характеристики
- Общая площадь: 146 м2
- Количество этажей: 2
- Стиль, разновидность: Дома в стиле Модерн
- Форма: Прямоугольные дома
- Тип кровли: Дома с четырехскатной крышей (вальмовой)
- Отделка: Без отделки
- Размер: 9x16
Отправьте свои контакты и мы расчитаем вам смету
Скорее всего вам подойдут следующие проекты домов:
Проект двухэтажного дома Дом id-119594
Семья с двумя детьми
Дом подходит для:
Дом подходит для:
Проект двухэтажного дома Дом id-118652
Для большой семьи
Дом подходит для:
Дом подходит для:
Проект двухэтажного дома Дом id-114503
Для большой семьи
Дом подходит для:
Дом подходит для:





















