Проект двухэтажного дома Теплый фахверк ЛИРА
Площадь
77 м 2
Размер дома:
Этажей:
2
Спален:
2
Санузел:
0
Гараж:
Нет
Баня:
Нет
Терраса:
Нет
Панорамные окна:
Нет
Мастер-спальня:
Нет
О проекте
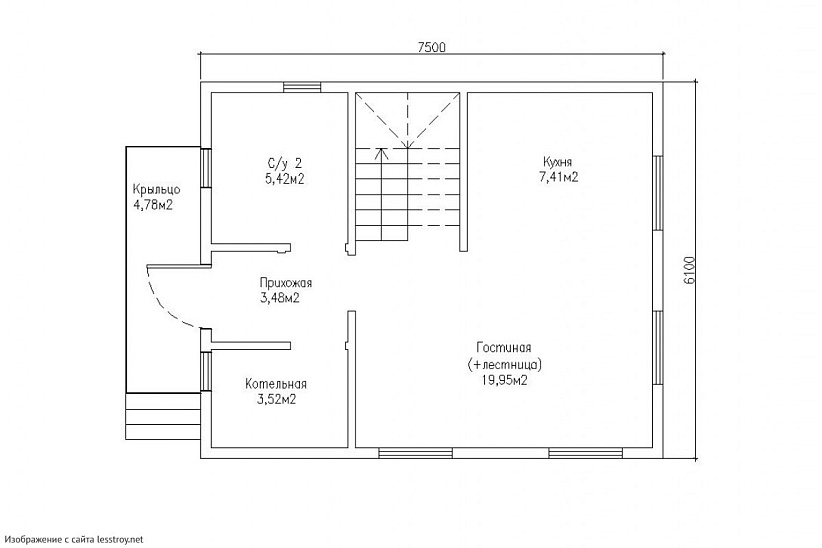
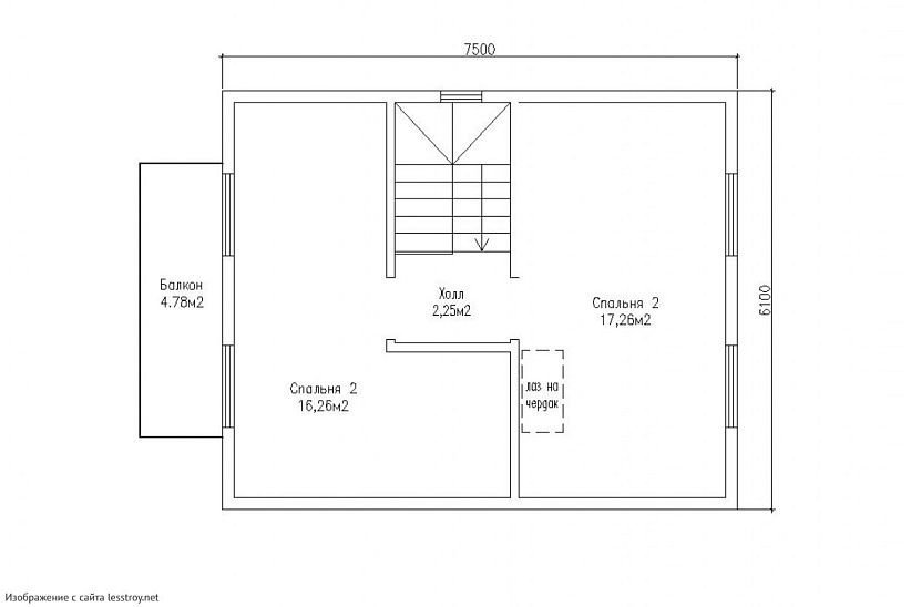
Рациональная планировка, сохраняющая ощущение уюта.В этом доме — 140 м² по-настоящему полезной площади. Материал кровли — рубероид, что добавляет зданию индивидуальность. Количество спален — 4, делая планировку гибкой. Двухэтажная грамотная планировка обеспечивает практичное распределение комнат.Характеристики
- Общая площадь: 77 м2
- Количество этажей: 2
- Стиль, разновидность: Дома в стиле Фахверк
- Форма: Прямоугольные дома
- Тип кровли: Дома с двускатной крышей
- Отделка: Без отделки
Отправьте свои контакты и мы расчитаем вам смету
Скорее всего вам подойдут следующие проекты домов:
Проект двухэтажного дома Проект каркасного дома 10х9 - СВЯТОСЛАВ
Семья с двумя детьми
Дом подходит для:
Дом подходит для:
Дом подходит для:
Дом подходит для:










