Проект одноэтажного дома Тихвинка
Площадь
155 м 2
Размер дома:
Этажей:
1
Спален:
3
Санузел:
0
Гараж:
Нет
Баня:
Нет
Терраса:
Нет
Панорамные окна:
Нет
Мастер-спальня:
Нет
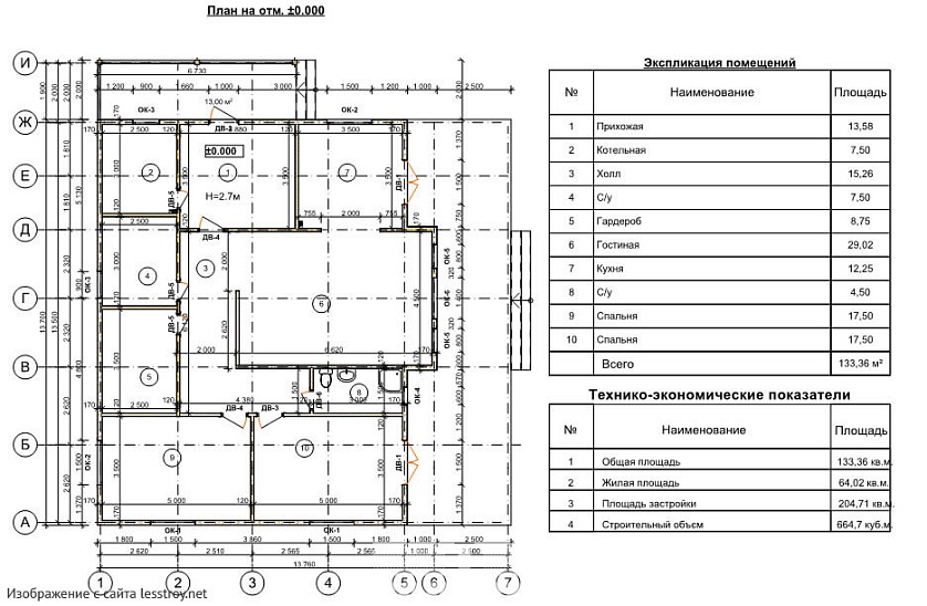
О проекте
Каркасный дом площадью 155 кв.м. с тремя спальнями — это современные технологии и комфорт. Стены из SIP-панелей гарантируют отличную теплоизоляцию. Проект отличается продуманной планировкой и стильным дизайном. Идеальный вариант для круглогодичного проживания. Уютное и теплое пространство.Характеристики
- Общая площадь: 155 м2
- Количество этажей: 1
- Стиль, разновидность: Дома в ином стиле
- Форма: Прямоугольные дома
- Тип кровли: Дома с двускатной крышей
- Отделка: Без отделки
Отправьте свои контакты и мы расчитаем вам смету
Скорее всего вам подойдут следующие проекты домов:
Дом подходит для:
Дом подходит для:
Дом подходит для:














