Проект двухэтажного дома Тип-6 ГБ
Площадь
197 м 2
Размер дома:
Этажей:
2
Спален:
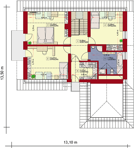
3
Санузел:
0
Гараж:
Нет
Баня:
Нет
Терраса:
Нет
Панорамные окна:
Нет
Мастер-спальня:
Нет
О проекте
Здание обладает выразительным современным обликом и комфортными интерьерами.Площадь 52 м² — это свобода и контроль одновременно. Крыша из металлочерепица подчёркивает современный облик дома. Одноэтажная рациональная планировка разграничивает спальные и дневные помещения. Стены из каркаса хорошо держат тепло и защищают от шума.Характеристики
- Общая площадь: 197 м2
- Количество этажей: 2
- Стиль, разновидность: Дома в стиле Прованс
- Форма: Прямоугольные дома
- Тип кровли: Дома с многощипцовой крышей
- Отделка: Без отделки
Отправьте свои контакты и мы расчитаем вам смету
Скорее всего вам подойдут следующие проекты домов:
Проект двухэтажного дома Дом id-114932
Для большой семьи
Дом подходит для:
Дом подходит для:
Проект двухэтажного дома Дом id-112770
Для большой семьи
Дом подходит для:
Дом подходит для:
Проект двухэтажного дома Дом id-114824
Для большой семьи
Дом подходит для:
Дом подходит для:























