Проект двухэтажного дома Тренто
Площадь
546 м 2
Размер дома:
21x17
Этажей:
2
Спален:
4
Санузел:
0
Гараж:
Нет
Баня:
Нет
Терраса:
Нет
Панорамные окна:
Нет
Мастер-спальня:
Нет
О проекте
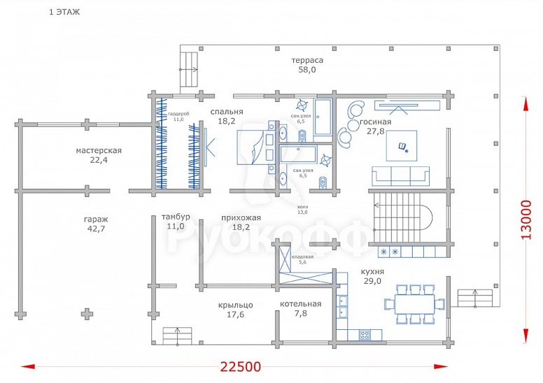
Комфортабельный дом с рациональной планировкой, изысканным дизайном и уютной обстановкой, где всё предусмотрено для идеальной жизни. Доступные 311 м² с разумным подходом к каждой зоне. Стены из газобетона хорошо держат тепло и защищают от шума. Дом спроектирован в духе дома в классическом стиле. Двухэтажная рациональная планировка организует пространство максимально эффективно.Характеристики
- Общая площадь: 546 м2
- Количество этажей: 2
- Стиль, разновидность: Дома в стиле Хай тек
- Форма: Прямоугольные дома
- Тип кровли: Дома с многощипцовой крышей
- Отделка: Без отделки
- Размер: 21x17
Отправьте свои контакты и мы расчитаем вам смету
Скорее всего вам подойдут следующие проекты домов:
Дом подходит для:



