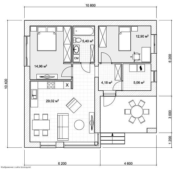
Проект одноэтажного дома Ц21
Площадь
85 м 2
Размер дома:
Этажей:
1
Спален:
3
Санузел:
0
Гараж:
Нет
Баня:
Нет
Терраса:
Нет
Панорамные окна:
Нет
Мастер-спальня:
Нет
О проекте
Пространство, в котором можно утонуть в блаженстве. 85 м² — дом, в который хочется возвращаться. Наличие 3 спальни удовлетворит запросы семьи с детьми. Стены из газобетона хорошо держат тепло и защищают от шума. металлочерепица придаёт дому выразительность и надёжность.Характеристики
- Общая площадь: 85 м2
- Количество этажей: 1
- Стиль, разновидность: Дома в ином стиле
- Форма: Прямоугольные дома
- Тип кровли: Дома с двускатной крышей
- Отделка: Без отделки
Отправьте свои контакты и мы расчитаем вам смету
Скорее всего вам подойдут следующие проекты домов:
Дом подходит для:
Дом подходит для:
Проект одноэтажного дома Печкин
Семья с двумя детьми
Дом подходит для:
Дом подходит для:








