Проект двухэтажного дома Ульяна
Площадь
83 м 2
Размер дома:
Этажей:
2
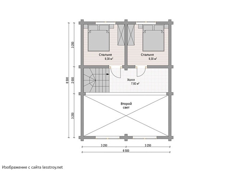
Спален:
2
Санузел:
0
Гараж:
Нет
Баня:
Нет
Терраса:
Нет
Панорамные окна:
Нет
Мастер-спальня:
Нет
О проекте
Дом, который греет не только стенами, но и атмосферой. С такими 114 м² возможна любая конфигурация комнат. Выбор бруса обусловлен его теплоизоляционными свойствами. Материал кровли — металлочерепица, что добавляет зданию индивидуальность. Количество спален — 2, делая планировку гибкой.Характеристики
- Общая площадь: 83 м2
- Количество этажей: 2
- Стиль, разновидность: Дома в стиле Кантри
- Форма: Квадратные дома
- Тип кровли: Дома с двускатной крышей
- Отделка: Без отделки
Отправьте свои контакты и мы расчитаем вам смету
Скорее всего вам подойдут следующие проекты домов:
Дом подходит для:
Дом подходит для:
Дом подходит для:







