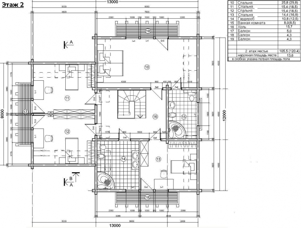
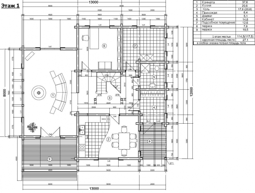
Проект двухэтажного дома Великий Альпийский Медведь
Площадь
258 м 2
Размер дома:
13x13
Этажей:
2
Спален:
0
Санузел:
0
Гараж:
Нет
Баня:
Нет
Терраса:
Нет
Панорамные окна:
Нет
Мастер-спальня:
Нет
О проекте
Пространство, где можно найти себя заново. Суммарная площадь 258 м² создаёт атмосферу простора. Архитектура выполнена в стиле дома в классическом стиле. Двухэтажная грамотная планировка создаёт идеальные условия для жизни всей семьи. Выбор Бруса обусловлен его теплоизоляционными свойствами.Характеристики
- Общая площадь: 258 м2
- Количество этажей: 2
- Стиль, разновидность: Дома в ином стиле
- Тип кровли: Дома с иной крышей
- Отделка: Без отделки
- Размер: 13x13
Отправьте свои контакты и мы расчитаем вам смету
Скорее всего вам подойдут следующие проекты домов:
Дом подходит для:
Дом подходит для:
Дом подходит для:









