Проект одноэтажного дома Версати
Площадь
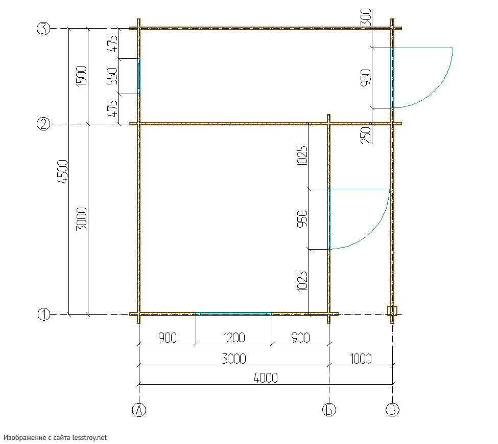
20 м 2
Размер дома:
Этажей:
1
Спален:
1
Санузел:
0
Гараж:
Нет
Баня:
Нет
Терраса:
Нет
Панорамные окна:
Нет
Мастер-спальня:
Нет
О проекте
Создано с вниманием к мелочам.210 м² идеально подойдут для семейных посиделок и личного пространства. Архитектура выполнена в стиле дома в стиле русский. Проект включает 4 спальни — удобно для семьи. Двухэтажная рациональная планировка разделяет приватные и общественные зоны.Характеристики
- Общая площадь: 20 м2
- Количество этажей: 1
- Стиль, разновидность: Дома в стиле Кантри
- Форма: Прямоугольные дома
- Тип кровли: Дома с шатровой крышей
- Отделка: Без отделки








