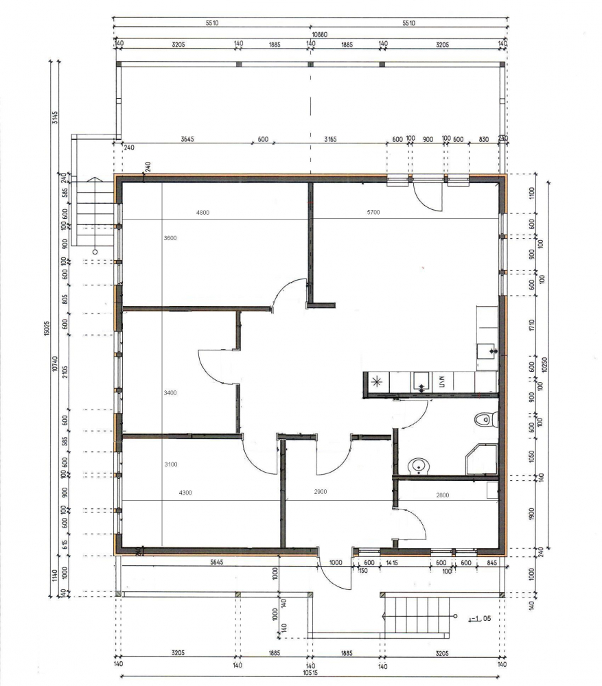
Проект одноэтажного дома Вилла Надежда
Площадь
163 м 2
Размер дома:
11x15
Этажей:
1
Спален:
3
Санузел:
0
Гараж:
Нет
Баня:
Нет
Терраса:
Нет
Панорамные окна:
Нет
Мастер-спальня:
Нет
О проекте
Пространство, в котором рождаются светлые планы. Дом объёмом 163 м² — пример грамотного проектирования. Материал кровли — металлочерепица, что добавляет зданию индивидуальность. Архитектура выполнена в стиле дома в стиле шале. Одноэтажная просторная планировка делает зонирование более логичным.Характеристики
- Общая площадь: 163 м2
- Количество этажей: 1
- Стиль, разновидность: Дома в стиле Шале
- Форма: Широкие дома
- Тип кровли: Дома с четырехскатной крышей (вальмовой)
- Отделка: Без отделки
- Размер: 11x15
Отправьте свои контакты и мы расчитаем вам смету
Скорее всего вам подойдут следующие проекты домов:
Дом подходит для:
Дом подходит для:
Дом подходит для:










