Проект одноэтажной бани Вытегра
Площадь
40 м 2
Размер дома:
4х10
Этажей:
1
Спален:
1
Санузел:
1
Гараж:
Нет
Баня:
Нет
Терраса:
Да
Панорамные окна:
Нет
Мастер-спальня:
Нет
Планировка
Фасады
О проекте
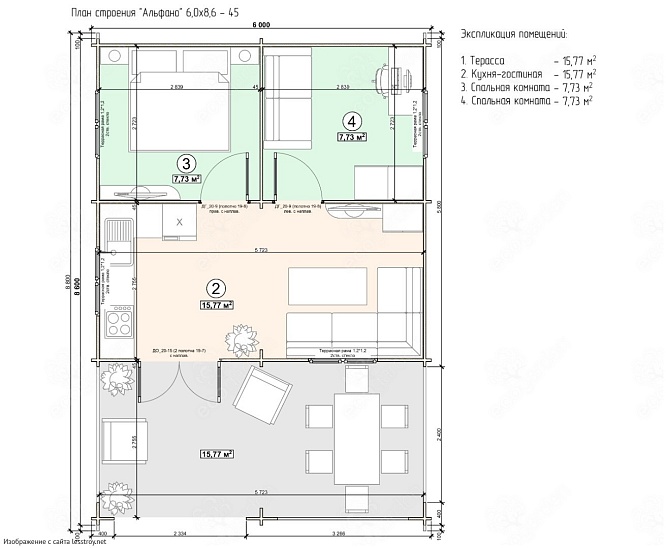
Компактный дом из бруса площадью 40 м² с жилыми 19 м² подойдет для небольшой семьи, ценящей уют и простоту. Ондулиновая кровля добавляет ему современности, а наличие бани делает проект еще комфортнее. Одна спальня создает атмосферу тепла, а четырехскатная крыша обеспечивает надежность. Это проект для тех, кто ищет гармонию в малых формах.Характеристики
- Общая площадь: 40 м2
- Жилая площадь: 19 м2
- Количество этажей: 1
- Гараж: нет
- Площадь кровли: 44 м2
- Форма: Квадратные дома
- Тип кровли: Дома с четырехскатной крышей (вальмовой)
- Пристрой: Дома с террасой
- Отделка: Без отделки
- Отделка фасада: Дома с отделкой имитацией бруса
Материалы и перечень работ
- В стоимость не входит
- Обвязка основания одинарная или двойная, из бруса пропиткой огнебиозащитой. Брус нестроганый 150х150 мм / 150х200 мм.
- Лаги пола Брус 100х150 мм (установка на ребро) с шагом 600 мм, или обрезная нестроганная доска 40х150 мм естественной влажности.
- Стены бани и перегородок Стены бани изготавливаются из профилированного бруса 90х140 мм, или 140х140 мм (по проекту), 17 рядов. Между венцами прокладывается утеплитель, джутовое полотно. Строительство производится в Тёплый угол.
- Подстропильные балки из обрезной доски 40х150 мм (для бань с мансардным этажом) с шагом 800 мм. Стропильная система из обрезной доски 40х100 мм с шагом 800 мм, обрешетка крыши 350-400 мм, крепится к стропильной системе на гвоздь через подкровельную мембану Наноизол А из обрезной доски 20-22 мм. Фронтоны, свесы крыши, карнизы подшиты вагонкой естественной влажности, толщиной 16-17 мм ширина карнизов 35 - 40 см.
- Кровля - Ондулин (коричневый, бордо, зеленый) на выбор. На стоимость не влияет. С установкой ендов, коньковых элементов, пристеночных планок, по проекту. Металлочерепица рассчитывается отдельно.
- В стоимость не входит
- В стоимость не входит
- В стоимость не входит
- В стоимость не входит
- Обвязка основания одинарная или двойная, из бруса пропиткой огнебиозащитой. Брус нестроганый 150х150 мм / 150х200 мм.
- Лаги пола Брус 100х150 мм (установка на ребро) с шагом 600 мм, или обрезная нестроганная доска 40х150 мм естественной влажности.
- Стены бани и перегородок Стены бани изготавливаются из профилированного бруса 90х140 мм, или 140х140 мм (по проекту), 17 рядов. Между венцами прокладывается утеплитель, джутовое полотно. Строительство производится в Тёплый угол.
- Подстропильные балки из обрезной доски 40х150 мм (для бань с мансардным этажом) с шагом 800 мм. Стропильная система из обрезной доски 40х100 мм с шагом 800 мм, обрешетка крыши 350-400 мм, крепится к стропильной системе на гвоздь через подкровельную мембану Наноизол А из обрезной доски 20-22 мм. Фронтоны, свесы крыши, карнизы подшиты вагонкой естественной влажности, толщиной 16-17 мм ширина карнизов 35 - 40 см.
- Кровля - Ондулин (коричневый, бордо, зеленый) на выбор. На стоимость не влияет. С установкой ендов, коньковых элементов, пристеночных планок, по проекту. Металлочерепица рассчитывается отдельно.
- В стоимость не входит
- В стоимость не входит
- В стоимость не входит












