Проект двухэтажного дома Зальцбург
Дом подходит для:
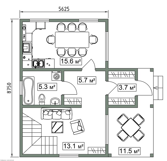
Площадь
102 м 2
Размер дома:
7x8
Этажей:
2
Спален:
4
Санузел:
1
Гараж:
Нет
Баня:
Нет
Терраса:
Нет
Панорамные окна:
Нет
Мастер-спальня:
Нет
Планировка
Характеристики
- Общая площадь: 102 м2
- Жилая площадь: 95 м2
- Количество этажей: 2
- Гараж: нет
- Площадь кровли: 108 м2
- Отделка: Без отделки
Материалы и перечень работ
- В стоимость не входит
- Балки перекрытия – 150 мм, камерной сушки
- Каркас – 150 мм, камерной сушки
- Утепление I этажа – 150 мм
- Обшивка снаружи – Вагонка или ОСП
- Материал кровли – Металлочерепица
- Утепление кровли – 150 мм
- Окна – Пластиковые, двухкамерные
- Дверь входная – Металическая, «Бульдорс» Start-1
- В стоимость не входит
- Утепление наружних стен – 150 мм
- В стоимость не входит
- Балки перекрытия – 150 мм, камерной сушки
- Каркас – 150 мм, камерной сушки
- Утепление I этажа – 150 мм
- Обшивка снаружи – Вагонка или ОСП
- Материал кровли – Металлочерепица
- Утепление кровли – 150 мм
- Окна – Пластиковые, двухкамерные
- Дверь входная – Металическая, «Бульдорс» Start-1
- В стоимость не входит
- Утепление наружних стен – 150 мм
Что еще входит в стоимость:
Отправьте свои контакты и мы расчитаем вам смету
Скорее всего вам подойдут следующие проекты домов:
Дом подходит для:
Дом подходит для:
Дом подходит для:











