Проект двухэтажного дома Запад
Площадь
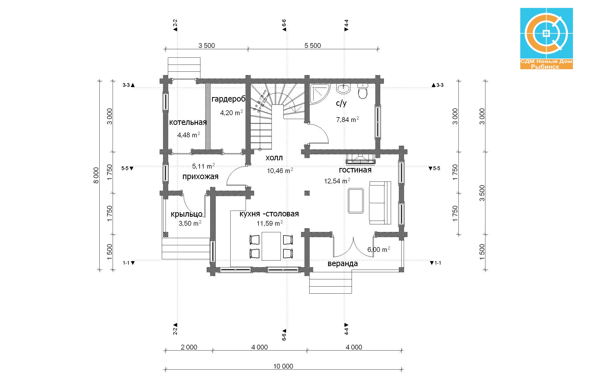
150 м 2
Размер дома:
8x10
Этажей:
2
Спален:
3
Санузел:
0
Гараж:
Нет
Баня:
Нет
Терраса:
Нет
Панорамные окна:
Нет
Мастер-спальня:
Нет
О проекте
Дом выглядит как выставочный образец современности, но живет как семейная хроника. В этом доме — 60 м² по-настоящему полезной площади. Архитектура выполнена в стиле дома в классическом стиле. Наличие 3 спальни удовлетворит запросы семьи с детьми. Каркаса делает дом надёжным при любой погоде.Характеристики
- Общая площадь: 150 м2
- Количество этажей: 2
- Стиль, разновидность: Дома в ином стиле
- Форма: Прямоугольные дома
- Тип кровли: Дома с многощипцовой крышей
- Отделка: Без отделки
- Размер: 8x10
Отправьте свои контакты и мы расчитаем вам смету
Скорее всего вам подойдут следующие проекты домов:
Дом подходит для:
Дом подходит для:
Дом подходит для:










