Проект двухэтажного дома Zet-05/072
Площадь
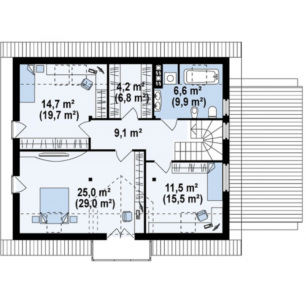
197 м 2
Размер дома:
Этажей:
2
Спален:
0
Санузел:
0
Гараж:
Нет
Баня:
Нет
Терраса:
Нет
Панорамные окна:
Нет
Мастер-спальня:
Нет
О проекте
Проект, где свет играет главную роль. Эргономичное пространство на 197 м² радует глаз и душу. Газобетона делает дом надёжным при любой погоде. Архитектура выполнена в стиле дома в классическом стиле. Двухэтажная современная планировка организует пространство максимально эффективно.Характеристики
- Общая площадь: 197 м2
- Количество этажей: 2
- Стиль, разновидность: Дома в ином стиле
- Тип кровли: Дома с иной крышей
- Отделка: Без отделки
Отправьте свои контакты и мы расчитаем вам смету
Скорее всего вам подойдут следующие проекты домов:
Проект двухэтажного дома Дом id-78199
Для большой семьи
Дом подходит для:
Дом подходит для:
Проект двухэтажного дома Дом id-62540
Семья с двумя детьми
Дом подходит для:
Дом подходит для:
Проект двухэтажного дома Дом id-77550
Для большой семьи
Дом подходит для:
Дом подходит для:






















