Проект двухэтажного дома Зимний деревянный дом Элита
Площадь
55 м 2
Размер дома:
Этажей:
2
Спален:
1
Санузел:
0
Гараж:
Нет
Баня:
Нет
Терраса:
Нет
Панорамные окна:
Нет
Мастер-спальня:
Нет
О проекте
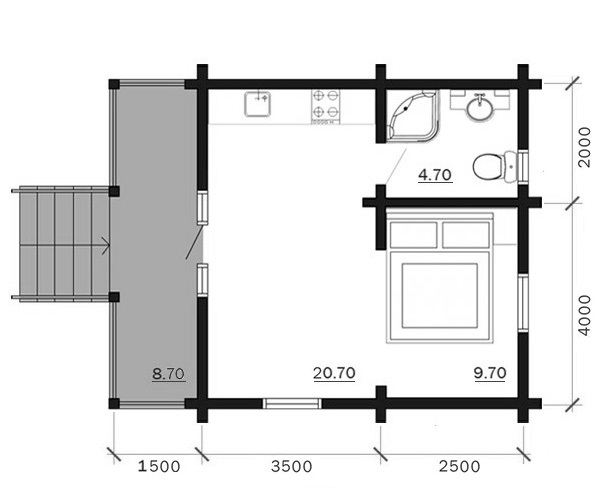
Дом из бруса площадью 55 м² предлагает компактность и уют. Два этажа с одной спальней делают его удобным для временного проживания. Материал стен обеспечивает тепло и экологичность. Проект подходит для дачного отдыха.Характеристики
- Общая площадь: 55 м2
- Количество этажей: 2
- Стиль, разновидность: Дома в ином стиле
- Форма: Прямоугольные дома
- Тип кровли: Дома с двускатной крышей
- Отделка: Без отделки
Отправьте свои контакты и мы расчитаем вам смету
Скорее всего вам подойдут следующие проекты домов:
Дом подходит для:
Дом подходит для:
Дом подходит для:










