Проект двухэтажного дома Зимний дом Куршевель
Площадь
200 м 2
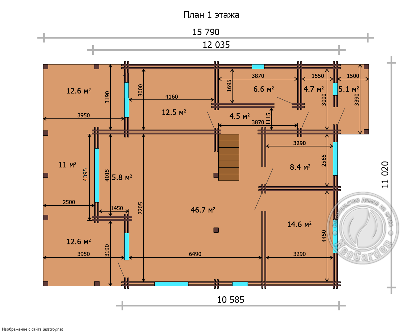
Размер дома:
11x12
Этажей:
2
Спален:
4
Санузел:
0
Гараж:
Нет
Баня:
Нет
Терраса:
Нет
Панорамные окна:
Нет
Мастер-спальня:
Нет
О проекте
Дом из бруса площадью 200 м² сочетает в себе современный дизайн и традиционные материалы. Просторные помещения наполнены светом благодаря большим окнам. Дерево придает интерьеру особый шарм и уют. Проект подойдет для тех, кто ценит натуральность и комфорт.Характеристики
- Общая площадь: 200 м2
- Количество этажей: 2
- Стиль, разновидность: Дома в ином стиле
- Форма: Прямоугольные дома
- Тип кровли: Дома с двускатной крышей
- Отделка: Без отделки
- Размер: 11x12
Отправьте свои контакты и мы расчитаем вам смету
Скорее всего вам подойдут следующие проекты домов:
Дом подходит для:
Дом подходит для:
Дом подходит для:









