Ваш город:

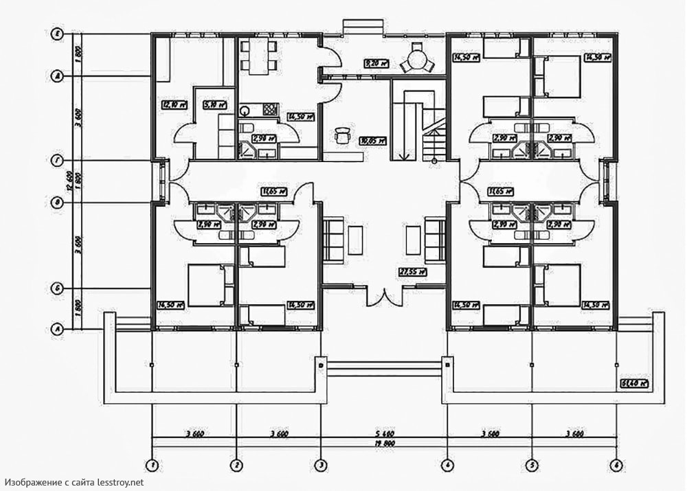
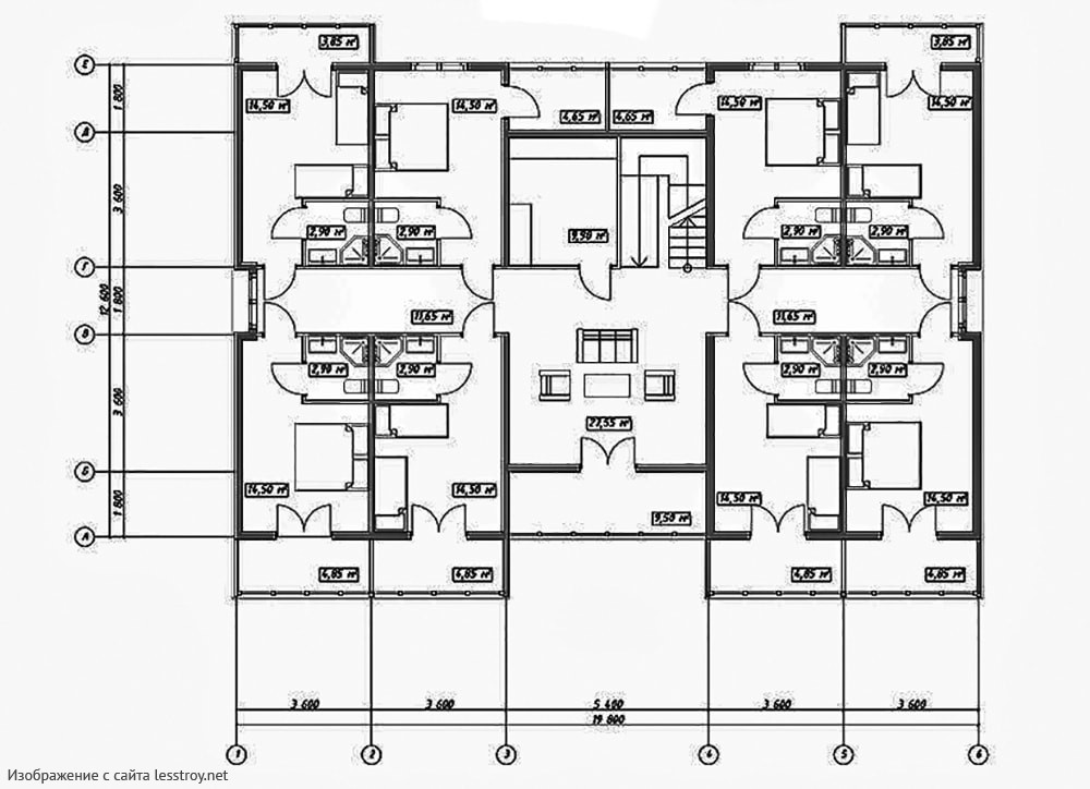
Проект двухэтажного дома Абрау-Дюрсо

Площадь: 600 м2
Размер: 13x20
Дом подходит для:
Для большой семьи
Этажей:
2
Стены:
Кровля:
Композитная черепица
Цена:
Оставить заявку
Площадь
600 м 2
Размер дома:
13x20
Этажей:
2
Спален:
4
Санузел:
0
Гараж:
Нет
Баня:
Нет
Терраса:
Нет
Панорамные окна:
Нет
Мастер-спальня:
Нет
О проекте
Архитектура здания избегает излишеств, сохраняя стиль.129 м² — когда каждый угол важен. Бревна делает дом надёжным при любой погоде. Проект включает 3 спальни — удобно для семьи. Архитектура выполнена в стиле дома в стиле русский.

Характеристики
  • Общая площадь: 600 м2
  • Количество этажей: 2
  • Стиль, разновидность: Дома в ином стиле
  • Форма: Прямоугольные дома
  • Тип кровли: Дома с двускатной крышей
  • Отделка: Без отделки
  • Размер: 13x20
Отправьте свои контакты и мы расчитаем вам смету
Прикрепить документ
Скорее всего вам подойдут следующие проекты домов: