Проект одноэтажного дома AGÖ 23-80 скандинавский дом с сауной
Площадь
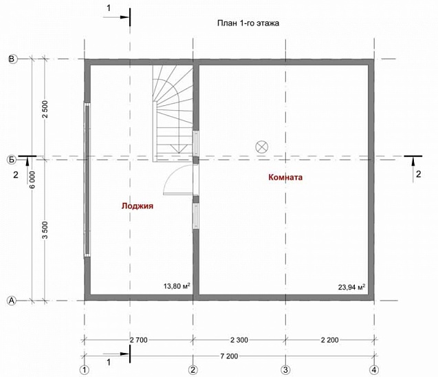
80 м 2
Размер дома:
Этажей:
1
Спален:
3
Санузел:
0
Гараж:
Нет
Баня:
Нет
Терраса:
Нет
Панорамные окна:
Нет
Мастер-спальня:
Нет
О проекте
Пространство, где сбываются мечты о perfect home. Общее пространство 242 м² вдохновляет на создание уюта. Проект включает 4 спальни — удобно для семьи. Дом спроектирован в духе финские дома. Одноэтажная просторная планировка делает зонирование более логичным.Характеристики
- Общая площадь: 80 м2
- Количество этажей: 1
- Стиль, разновидность: Финские дома
- Форма: Прямоугольные дома
- Тип кровли: Дома с двускатной крышей
- Отделка: Без отделки
Отправьте свои контакты и мы расчитаем вам смету
Скорее всего вам подойдут следующие проекты домов:
Дом подходит для:
Дом подходит для:
Дом подходит для:










