Проект одноэтажного дома Алиса
Дом подходит для:
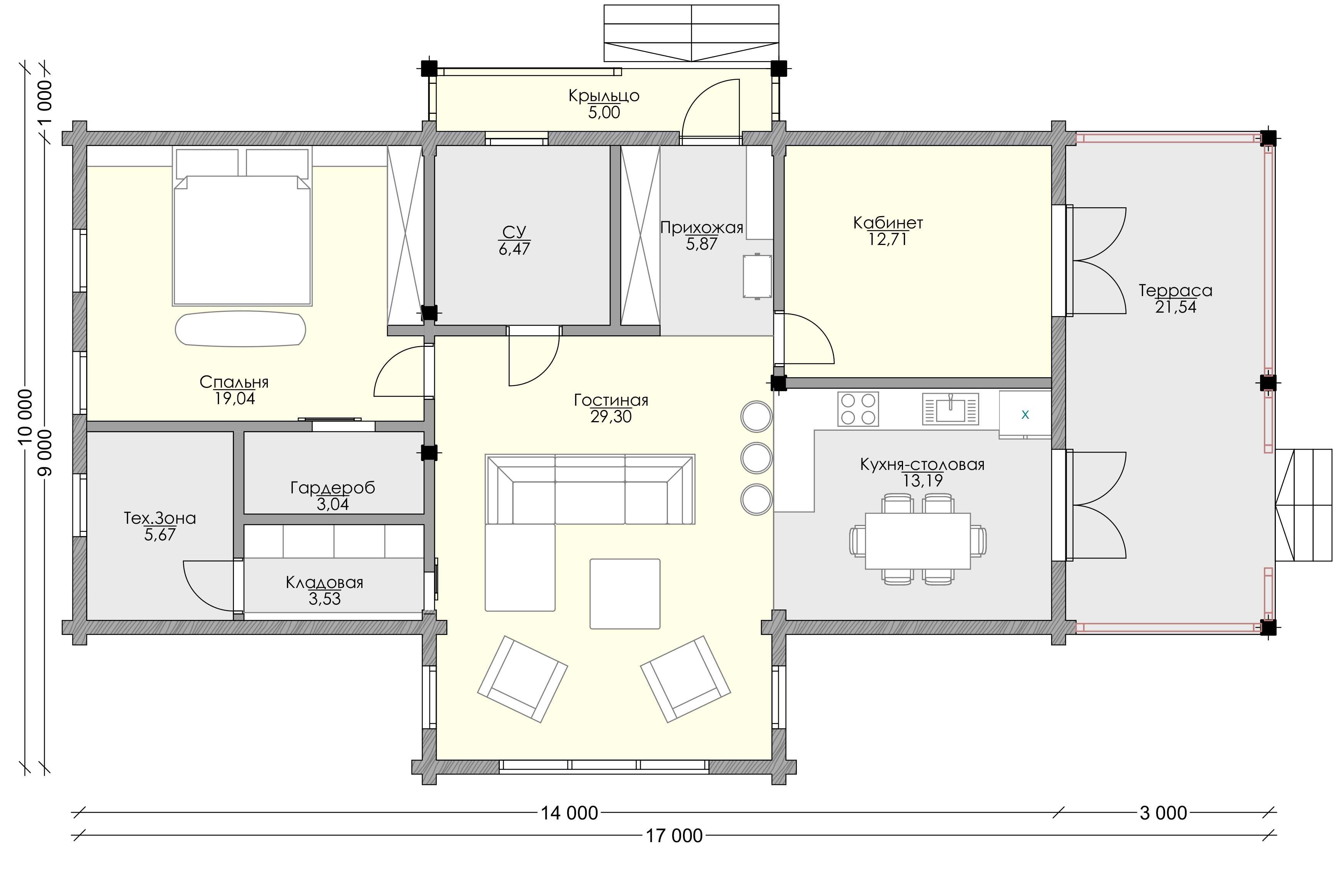
Площадь
134 м 2
Размер дома:
17х10
Этажей:
1
Спален:
1
Санузел:
1
Гараж:
Нет
Баня:
Нет
Терраса:
Да
Панорамные окна:
Нет
Мастер-спальня:
Нет
Планировка
Фасады
О проекте
Уютный дом Алиса площадью 134 м² с жилыми 89 м² — воплощение тепла и простоты. Брус в стенах наполняет интерьер естественностью, а натуральная черепица на крыше гарантирует защиту. Одна спальня и санузел делают его идеальным для уединения. Свайный фундамент завершает образ этого добротного жилья.Характеристики
- Общая площадь: 134 м2
- Жилая площадь: 89 м2
- Количество этажей: 1
- Гараж: нет
- Площадь кровли: 140 м2
- Форма: Квадратные дома
- Тип кровли: Дома с четырехскатной крышей (вальмовой)
- Пристрой: Дома с террасой
- Отделка: С черновой отделкой
- Фундамент: Дома со свайным фундаментом
Материалы и перечень работ
- Устройство обвязочного бруса на фундамент
- Привязка и разметка фундамента на участке
- Гидроизоляция фундамента
- Железобетонные забивные сваи сечением 20x20 см длиной 3 метра из бетона высшего качества
- Домокомплект из клееного бруса 200x185 мм.
- Сборка домокомплекта на герметик
- Антисептирование бруса, обработка торцов воском
- Все расходные материалы для сборки
- Устройство межэтажных балок
- Железобетонные забивные сваи сечением 20x20 см длиной 3 метра из бетона высшего качества
- Капитальная кровля (утепление 20 см, пароизоляция, гидроизоляция, обрешетка и контробрешетка) с покрытием натуральной черепицей BRAAS
- Устройство стропильной системы
- Деревянные окна и входные двери (евробрус трехламельный 78, стеклопакет трехслойный 40 мм) с подготовкой проемов и монтажом
- В стоимость не входит
- В стоимость не входит
- Устройство обвязочного бруса на фундамент
- Привязка и разметка фундамента на участке
- Гидроизоляция фундамента
- Железобетонные забивные сваи сечением 20x20 см длиной 3 метра из бетона высшего качества
- Домокомплект из клееного бруса 200x185 мм.
- Сборка домокомплекта на герметик
- Антисептирование бруса, обработка торцов воском
- Все расходные материалы для сборки
- Устройство межэтажных балок
- Железобетонные забивные сваи сечением 20x20 см длиной 3 метра из бетона высшего качества
- Капитальная кровля (утепление 20 см, пароизоляция, гидроизоляция, обрешетка и контробрешетка) с покрытием натуральной черепицей BRAAS
- Устройство стропильной системы
- Деревянные окна и входные двери (евробрус трехламельный 78, стеклопакет трехслойный 40 мм) с подготовкой проемов и монтажом
- В стоимость не входит
- В стоимость не входит
Что еще входит в стоимость:
Отправьте свои контакты и мы расчитаем вам смету
Скорее всего вам подойдут следующие проекты домов:
Проект одноэтажного дома Проект брусового дома 7,5х8,5 ДБ-74 Лесстрой
Семья с одним ребенком
Дом подходит для:
Дом подходит для:
Дом подходит для:
Проект одноэтажного дома Проект дома из бруса 8х11 ДБ-73 с террасой
Семья с одним ребенком
Дом подходит для:
Дом подходит для:














