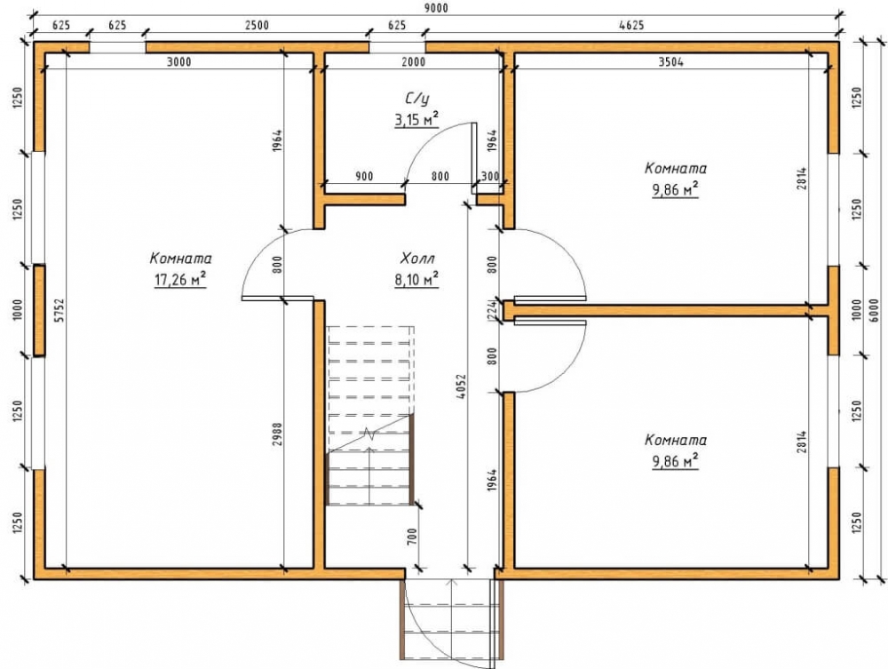
Проект двухэтажного дома Барин 90
Площадь
90 м 2
Размер дома:
6x9
Этажей:
2
Спален:
4
Санузел:
0
Гараж:
Нет
Баня:
Нет
Терраса:
Нет
Панорамные окна:
Нет
Мастер-спальня:
Нет
О проекте
Проект, где кухня совмещена с гостиной для большего простора. 90 м² под одной крышей — всё необходимое здесь. В доме предусмотрено 4 спальни, что важно для комфорта. металлочерепица придаёт дому выразительность и надёжность. Архитектура выполнена в стиле дома в классическом стиле.Характеристики
- Общая площадь: 90 м2
- Количество этажей: 2
- Стиль, разновидность: Дома в ином стиле
- Форма: Прямоугольные дома
- Тип кровли: Дома с двускатной крышей
- Отделка: Без отделки
- Размер: 6x9














