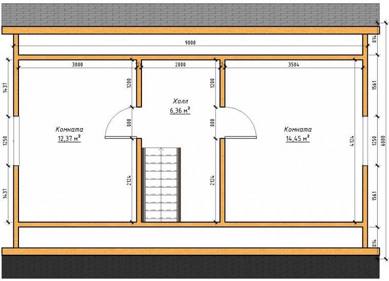
Проект двухэтажного дома Каркасный дом с мансардным этажом размером 6х9м Проект Д-44
Площадь
95 м 2
Размер дома:
6x9
Этажей:
2
Спален:
2
Санузел:
0
Гараж:
Нет
Баня:
Нет
Терраса:
Нет
Панорамные окна:
Нет
Мастер-спальня:
Нет
О проекте
Интерьеры, где дождь за окном уютен.95 м² — и ни один метр не пропадает зря. В доме предусмотрено 2 спальни, что важно для комфорта. Конструкция из Каркас обеспечивает прочность и долговечность. В качестве кровли использована ондулин — материал, проверенный временем.Характеристики
- Общая площадь: 95 м2
- Количество этажей: 2
- Стиль, разновидность: Дома в стиле Модерн
- Форма: Прямоугольные дома
- Тип кровли: Дома с двускатной крышей
- Отделка: Без отделки
- Размер: 6x9














