Проект одноэтажного дома Благо
Площадь
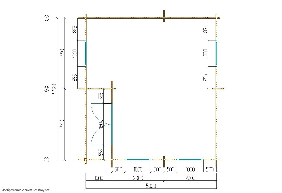
30 м 2
Размер дома:
Этажей:
1
Спален:
1
Санузел:
0
Гараж:
Нет
Баня:
Нет
Терраса:
Нет
Панорамные окна:
Нет
Мастер-спальня:
Нет
О проекте
Стиль, достойный восхищения.С такими 200 м² возможна любая конфигурация комнат. Рубероид придаёт дому выразительность и надёжность. Двухэтажная грамотная планировка обеспечивает комфортную навигацию внутри дома. Архитектура выполнена в стиле дома в стиле русский.Характеристики
- Общая площадь: 30 м2
- Количество этажей: 1
- Стиль, разновидность: Дома в стиле Кантри
- Форма: Прямоугольные дома
- Тип кровли: Дома с двускатной крышей
- Отделка: Без отделки







