Проект одноэтажного дома Дом из бруса 6х6 с мансардой, крыльцом и ломаной крышей ДБ-9
Площадь
36 м 2
Размер дома:
6x6
Этажей:
1
Спален:
0
Санузел:
0
Гараж:
Нет
Баня:
Нет
Терраса:
Нет
Панорамные окна:
Нет
Мастер-спальня:
Нет
О проекте
Здесь каждая линия говорит о новом времени, а атмосфера — о семье. Жить в 240 м² — это удобно, красиво и рационально. Выбор бруса обусловлен его теплоизоляционными свойствами. Материал кровли — металлочерепица, что добавляет зданию индивидуальность. Количество спален — 4, делая планировку гибкой.Характеристики
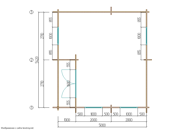
- Общая площадь: 36 м2
- Количество этажей: 1
- Стиль, разновидность: Дома в ином стиле
- Тип кровли: Дома с иной крышей
- Отделка: Без отделки
- Размер: 6x6










