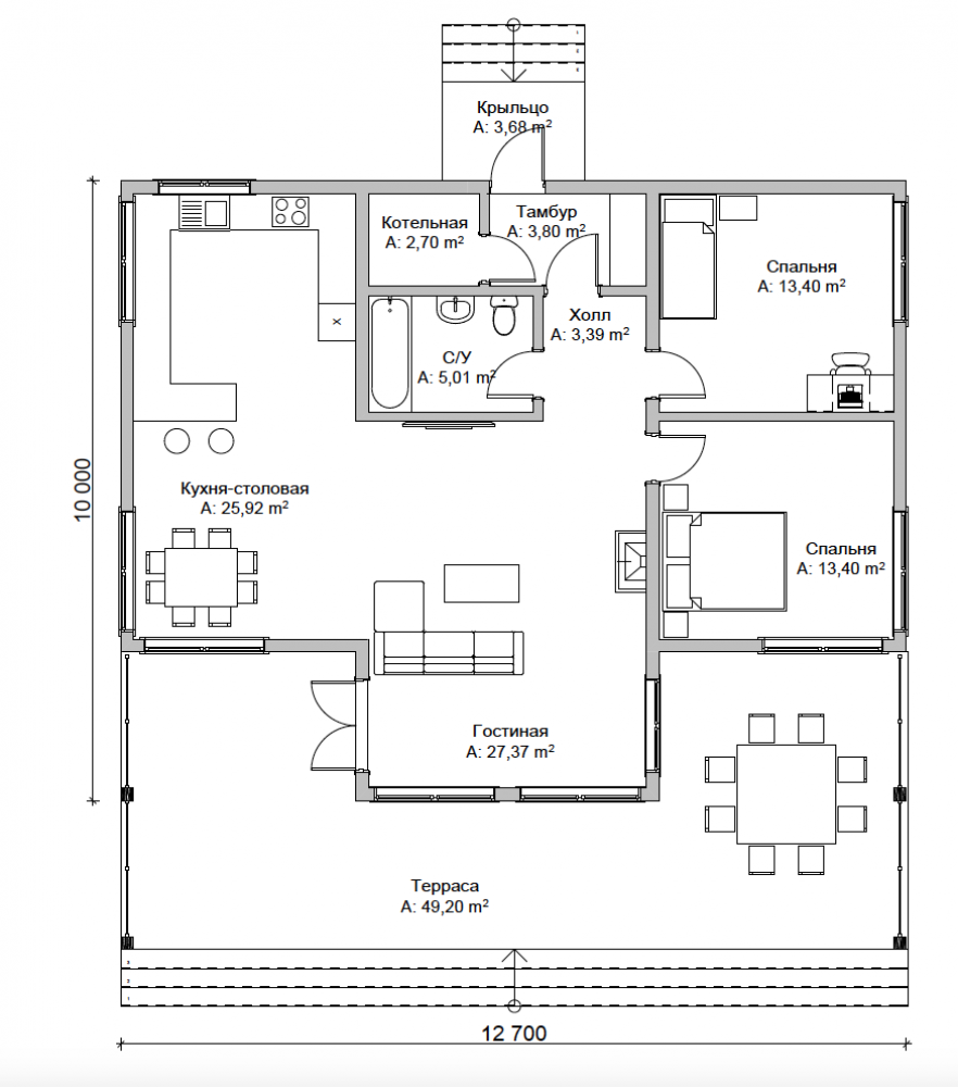
Проект одноэтажного дома Бриз
Площадь
93 м 2
Размер дома:
10x12
Этажей:
1
Спален:
2
Санузел:
0
Гараж:
Нет
Баня:
Нет
Терраса:
Нет
Панорамные окна:
Нет
Мастер-спальня:
Нет
О проекте
Проект, где нет противоречия между открытым пространством и личными границами. Суммарно 93 м² — для жизни без лишних ограничений. Конструкция из Каркас обеспечивает прочность и долговечность. Материал кровли — металлочерепица, что добавляет зданию индивидуальность. Дом спроектирован в духе дома в стиле фахверк.Характеристики
- Общая площадь: 93 м2
- Количество этажей: 1
- Стиль, разновидность: Дома в стиле Фахверк
- Форма: Прямоугольные дома
- Тип кровли: Дома с двускатной крышей
- Отделка: Без отделки
- Размер: 10x12









