Проект двухэтажного дома Брус 15-82
Площадь
268 м 2
Размер дома:
Этажей:
2
Спален:
0
Санузел:
0
Гараж:
Нет
Баня:
Нет
Терраса:
Нет
Панорамные окна:
Нет
Мастер-спальня:
Нет
О проекте
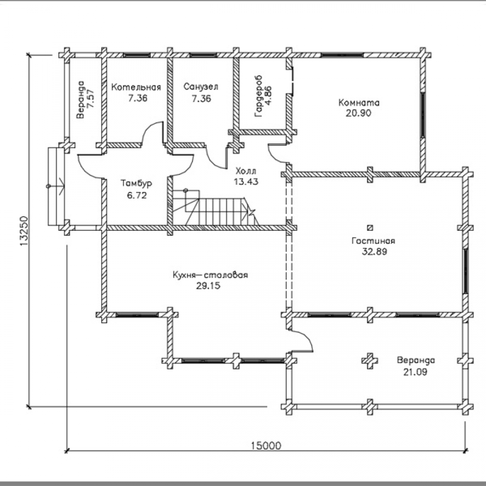
Проект создает дом с современной эстетикой и душевной атмосферой семейного гнездышка.135 м² — идеальная отправная точка для домашнего уюта. Одноэтажная рациональная планировка делает зонирование более логичным. Стены из бруса хорошо держат тепло и защищают от шума. В доме предусмотрено 2 спальни, что важно для комфорта.Характеристики
- Общая площадь: 268 м2
- Количество этажей: 2
- Стиль, разновидность: Дома в ином стиле
- Тип кровли: Дома с иной крышей
- Отделка: Без отделки
Отправьте свои контакты и мы расчитаем вам смету
Скорее всего вам подойдут следующие проекты домов:
Дом подходит для:
Дом подходит для:
Дом подходит для:














