Заказать дома 220 кв.м
Проект двухэтажного дома Барнхаус 220
Для большой семьи
Дом подходит для:
Дом подходит для:
Проект двухэтажного дома Юлия Прагматик
Для большой семьи
Дом подходит для:
Дом подходит для:
Дом подходит для:
Дом подходит для:
Дом подходит для:
Дом подходит для:
Проект двухэтажного дома Дом из клееного бруса под ключ № ДиКБ-06
Для большой семьи
Дом подходит для:
Дом подходит для:
Дом подходит для:
Дом подходит для:
Дом подходит для:
Дом подходит для:
Проект двухэтажного дома Дом id-98174
Для большой семьи
Дом подходит для:
Дом подходит для:
Проект двухэтажного дома Дом id-99837
Для большой семьи
Дом подходит для:
Дом подходит для:
Дом подходит для:
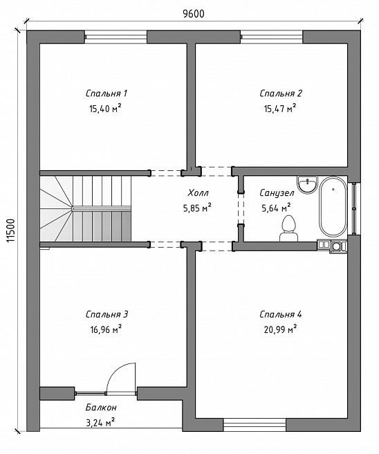
Проект двухэтажного дома Дома из профилированного бруса с отделкой под ключ 220м2
Семья с двумя детьми
Дом подходит для:
Дом подходит для:
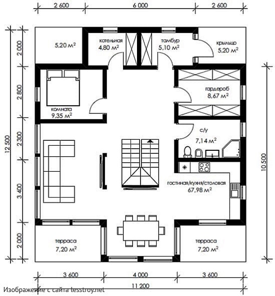
Проект одноэтажного дома Дом id-36220
Семья с двумя детьми
Дом подходит для:
Дом подходит для:
Дом подходит для:
Дом подходит для:
Дом подходит для:
Дом подходит для:
О проектах домов
Примеры готовых проектов помогут в выборе строительной компании. Внимательно изучите проект понравившегося дома, ознакомьтесь с отзывами о компании, отправьте заявку на расчет сметы.
На сайте stroiman.ru собраны только надежные подрядчики по строительству и отделке домов. Каждая компания прошла проверку на юридическую чистоту и качество выполненных заказов.






































































































