Проект двухэтажного дома Брюссель
Дом подходит для:
Площадь
152 м 2
Размер дома:
9,5х8
Этажей:
2
Спален:
3
Санузел:
2
Гараж:
Нет
Баня:
Нет
Терраса:
Нет
Панорамные окна:
Нет
Мастер-спальня:
Нет
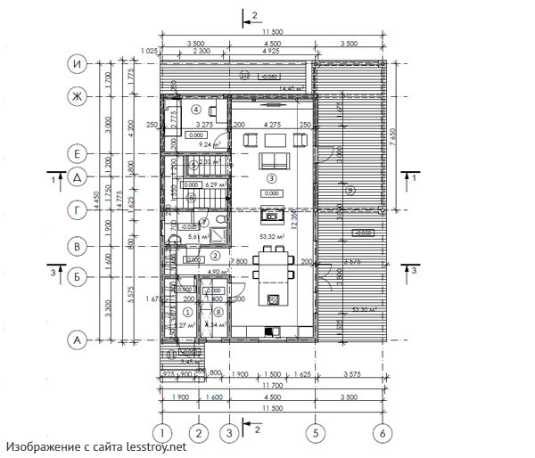
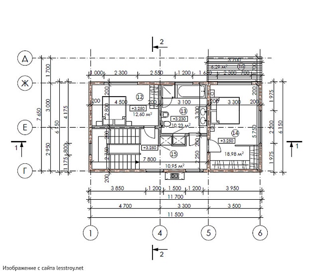
Планировка
Характеристики
- Общая площадь: 152 м2
- Жилая площадь: 122 м2
- Количество этажей: 2
- Гараж: нет
- Площадь кровли: 159 м2
- Отделка: Без отделки
- Фундамент: Дома со свайно-винтовым фундаментом
Материалы и перечень работ
- ВС-108/300/2500мм, ТУ 5260-001-84045723-2011. Сваи закручиваются с использованием спецтехники. Толщина стенки сваи 4 мм, толщина лопасти 5 мм. Внутреннее пространство сваи заполняется бетонной смесью М300. Вверху сваи приваривается металлический оголовок, 200*200 мм. Покрытие сваи - 2-х компонентный заводской защитный состав. Двойная гидроизоляция фундамента – гидростеклоизол
- Стойки: строганная доска камерной сушки 45х145 мм;
- промежуточные раскосы: строганная доска камерной сушки 20х145 мм
- Металлочерепица GRAND LINE, профиль CLASSIC, покрытие РЕ, толщина 0,45 мм/ Металлочерепица Металл-Профиль, профиль ЛАМОНТЕРРА/ЛАМОНТЕРРА Х, покрытие РЕ, толщина 0,45 мм.
- Пластиковые софиты
- Пластиковая водосточная система
- Оконные конструкции ПВХ Rehau, KBE стандартных размеров. Толщина профиля 60-70 мм. Цвет - белый. 2-х камерный стеклопакет (3 стекла). Противомоскитные сетки. Фурнитура ROTO. Подоконник ПВХ (цвет белый) Отливы на окна: водоотлив металлический оцинкованный крашенный.
- Одностворчатые межкомнатные двери с покрытием ПВХ пленкой; с установкой петель, замков и ручек Входная металлическая (1 шт.): Металлическая дверь Российская утеплённая: Термо (2 замка, 1 задвижка)
- В стоимость не входит
- Стойки: строганная доска камерной сушки 40х145 мм; промежуточные раскосы: строганная доска камерной сушки 20х145 мм. Некрашеная имитация бруса 16 мм (+-2мм), длина до 6000 мм, сорт АВ.
- Евровагонка 12,5 мм
- Наружные углы: уголок наружный деревянный 50 мм
- Внутренние углы: уголок внутренний деревянный 25 мм
- Внутренние откосы: имитация бруса 16 мм
- ВС-108/300/2500мм, ТУ 5260-001-84045723-2011. Сваи закручиваются с использованием спецтехники. Толщина стенки сваи 4 мм, толщина лопасти 5 мм. Внутреннее пространство сваи заполняется бетонной смесью М300. Вверху сваи приваривается металлический оголовок, 200*200 мм. Покрытие сваи - 2-х компонентный заводской защитный состав. Двойная гидроизоляция фундамента – гидростеклоизол
- Стойки: строганная доска камерной сушки 45х145 мм;
- промежуточные раскосы: строганная доска камерной сушки 20х145 мм
- Металлочерепица GRAND LINE, профиль CLASSIC, покрытие РЕ, толщина 0,45 мм/ Металлочерепица Металл-Профиль, профиль ЛАМОНТЕРРА/ЛАМОНТЕРРА Х, покрытие РЕ, толщина 0,45 мм.
- Пластиковые софиты
- Пластиковая водосточная система
- Оконные конструкции ПВХ Rehau, KBE стандартных размеров. Толщина профиля 60-70 мм. Цвет - белый. 2-х камерный стеклопакет (3 стекла). Противомоскитные сетки. Фурнитура ROTO. Подоконник ПВХ (цвет белый) Отливы на окна: водоотлив металлический оцинкованный крашенный.
- Одностворчатые межкомнатные двери с покрытием ПВХ пленкой; с установкой петель, замков и ручек Входная металлическая (1 шт.): Металлическая дверь Российская утеплённая: Термо (2 замка, 1 задвижка)
- В стоимость не входит
- Стойки: строганная доска камерной сушки 40х145 мм; промежуточные раскосы: строганная доска камерной сушки 20х145 мм. Некрашеная имитация бруса 16 мм (+-2мм), длина до 6000 мм, сорт АВ.
- Евровагонка 12,5 мм
- Наружные углы: уголок наружный деревянный 50 мм
- Внутренние углы: уголок внутренний деревянный 25 мм
- Внутренние откосы: имитация бруса 16 мм
Что еще входит в стоимость:
Отправьте свои контакты и мы расчитаем вам смету
Скорее всего вам подойдут следующие проекты домов:
Дом подходит для:
Дом подходит для:
Дом подходит для:













