Проект двухэтажного дома Д-00530 Просторный
Площадь
204 м 2
Размер дома:
10x10
Этажей:
2
Спален:
4
Санузел:
0
Гараж:
Нет
Баня:
Нет
Терраса:
Нет
Панорамные окна:
Нет
Мастер-спальня:
Нет
О проекте
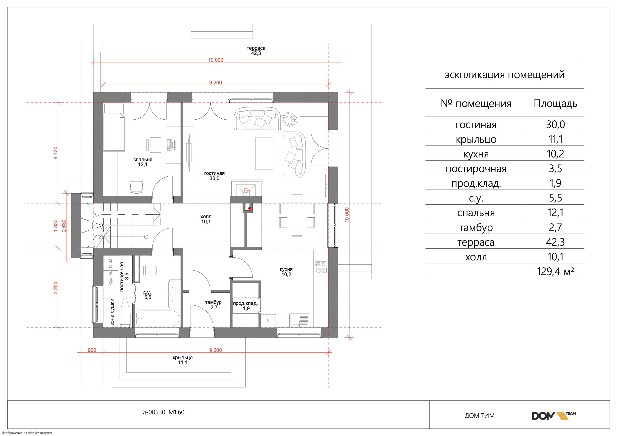
Проект, ставший олицетворением тепла. Комфортное пространство в 204 м² подойдёт для любой семьи. Материал кровли — черепица, что добавляет зданию индивидуальность. Двухэтажная просторная планировка организует пространство максимально эффективно. Дом спроектирован в духе дома в стиле шале.Характеристики
- Общая площадь: 204 м2
- Количество этажей: 2
- Стиль, разновидность: Дома в стиле Шале
- Форма: Квадратные дома
- Тип кровли: Дома с четырехскатной крышей (вальмовой)
- Отделка: Без отделки
- Размер: 10x10
Отправьте свои контакты и мы расчитаем вам смету
Скорее всего вам подойдут следующие проекты домов:
Проект двухэтажного дома X34
Для большой семьи
Дом подходит для:
Дом подходит для:


