Проект одноэтажного дома Д-19
Дом подходит для:
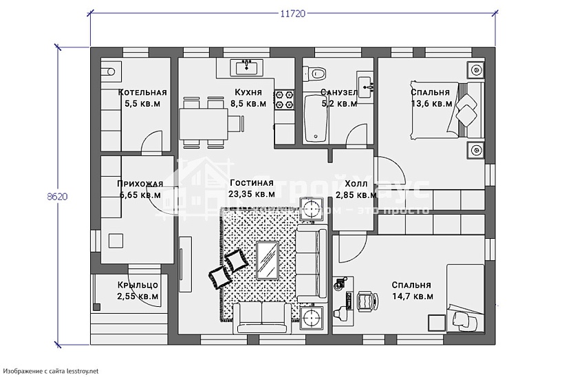
Площадь
96 м 2
Размер дома:
8х12
Этажей:
1
Спален:
2
Санузел:
1
Гараж:
Нет
Баня:
Нет
Терраса:
Да
Панорамные окна:
Нет
Мастер-спальня:
Нет
Планировка
Характеристики
- Общая площадь: 96 м2
- Жилая площадь: 61 м2
- Количество этажей: 1
- Гараж: нет
- Площадь кровли: 105 м2
- Форма: Квадратные дома
- Тип кровли: Дома с многощипцовой крышей
- Пристрой: Дома с террасой
- Отделка: Без отделки
- Отделка фасада: Дома с отделкой имитацией бруса
Материалы и перечень работ
- В стоимость не входит
- Стены дома - профилированный брус, массив, хвойных пород
- Перегородки - профилированный брус 90х140мм
- Венцы сруба собираются на деревянные нагели
- Основание дома выполняется из бруса 150х150мм в два ряда
- Лаги пола выполняются из доски 40х150мм, шаг - 600мм
- Стропильная система выполняется из бруска 40х100мм, шаг - 600мм
- Кровля - «Ондулин», цвет на выбор – красный, коричневый, зеленый
- Обрешетка крыши не сплошная, выполняется из обрезной доски 20х100мм
- Под кровлю укладывается гидроизоляция (ветрозащита) - «Isospan АМ», или аналоги
- Окна деревянные, двойного остекления, комплектуются фурнитурой, устанавливаются на петли
- Входная дверь: металлическая
- Межкомнатные: деревянные (филенчатые) устанавливаются на петли, фурнитурой не комплектуются
- Во все оконные и дверные проемы устанавливаются обсадные бруски «ройки»
- Оконные и дверные проемы с двух сторон отделываются наличником
- В стоимость не входит
- Стены сруба снаружи не отделываются
- Фронтоны обиваются евровагонкой, камерной сушки
- Софиты, карнизы крыши и углы дома подшиваются евровагонкой
- В стоимость не входит
- Стены дома - профилированный брус, массив, хвойных пород
- Перегородки - профилированный брус 90х140мм
- Венцы сруба собираются на деревянные нагели
- Основание дома выполняется из бруса 150х150мм в два ряда
- Лаги пола выполняются из доски 40х150мм, шаг - 600мм
- Стропильная система выполняется из бруска 40х100мм, шаг - 600мм
- Кровля - «Ондулин», цвет на выбор – красный, коричневый, зеленый
- Обрешетка крыши не сплошная, выполняется из обрезной доски 20х100мм
- Под кровлю укладывается гидроизоляция (ветрозащита) - «Isospan АМ», или аналоги
- Окна деревянные, двойного остекления, комплектуются фурнитурой, устанавливаются на петли
- Входная дверь: металлическая
- Межкомнатные: деревянные (филенчатые) устанавливаются на петли, фурнитурой не комплектуются
- Во все оконные и дверные проемы устанавливаются обсадные бруски «ройки»
- Оконные и дверные проемы с двух сторон отделываются наличником
- В стоимость не входит
- Стены сруба снаружи не отделываются
- Фронтоны обиваются евровагонкой, камерной сушки
- Софиты, карнизы крыши и углы дома подшиваются евровагонкой
Что еще входит в стоимость:
Отправьте свои контакты и мы расчитаем вам смету
Скорее всего вам подойдут следующие проекты домов:
Дом подходит для:
Дом подходит для:
Дом подходит для:













