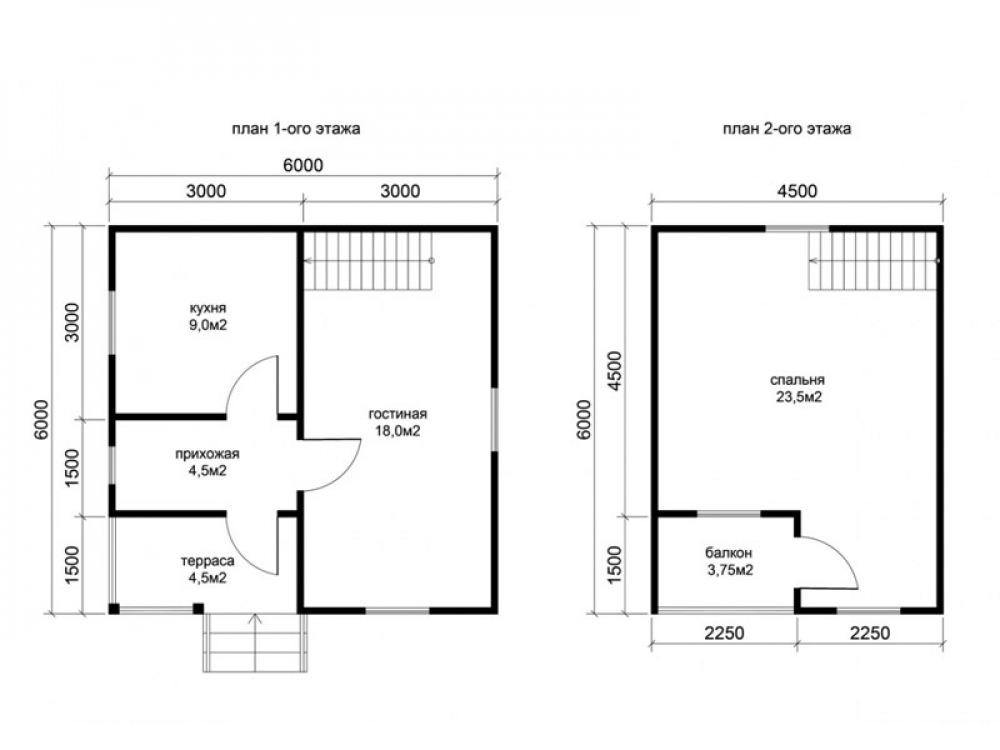
Проект двухэтажного дома Д-61 дом из бруса 6,0х6,0м с террасой и балконом
Площадь
63 м 2
Размер дома:
6x6
Этажей:
2
Спален:
1
Санузел:
0
Гараж:
Нет
Баня:
Нет
Терраса:
Нет
Панорамные окна:
Нет
Мастер-спальня:
Нет
О проекте
В этом доме все элементы работают на создание гармоничной атмосферы.Площадь 84 м² — это свобода и контроль одновременно. Наличие 3 спальни удовлетворит запросы семьи с детьми. Материал кровли — ондулин, что добавляет зданию индивидуальность. Двухэтажная рациональная планировка создаёт идеальные условия для жизни всей семьи.Характеристики
- Общая площадь: 63 м2
- Количество этажей: 2
- Стиль, разновидность: Дома в ином стиле
- Форма: Квадратные дома
- Тип кровли: Дома с иной крышей
- Отделка: Без отделки
- Размер: 6x6





