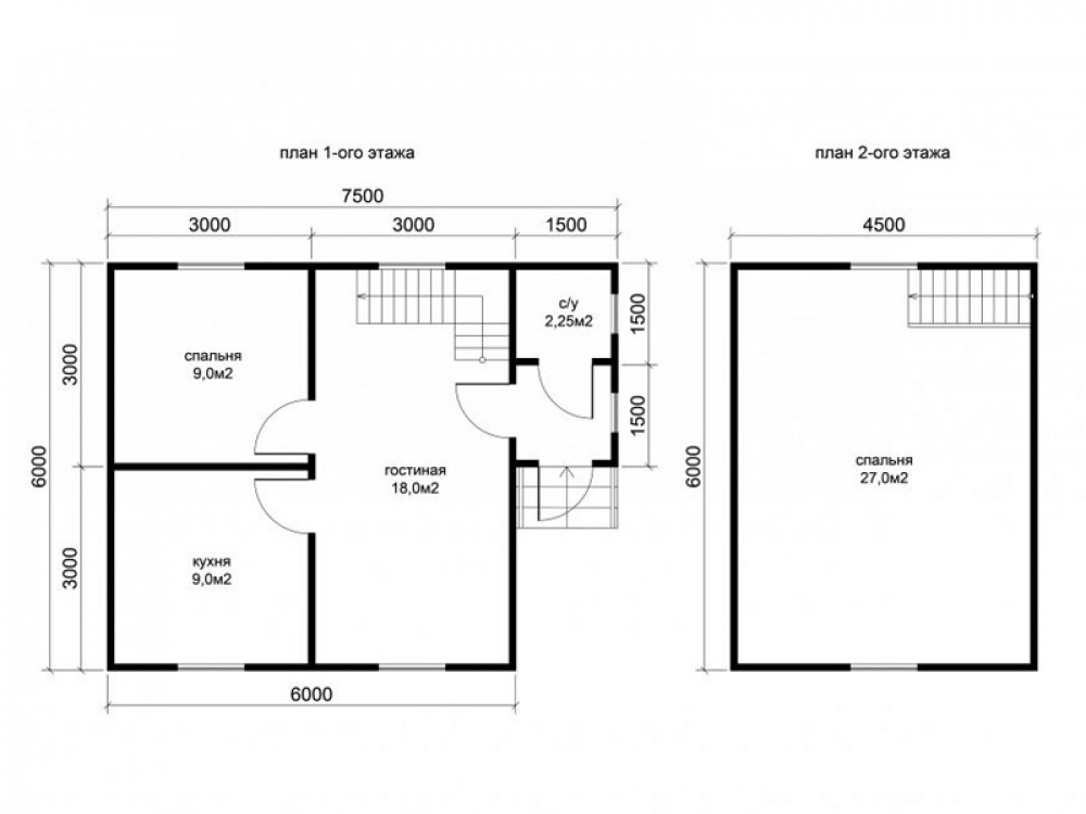
Проект двухэтажного дома Д-62 дом из бруса 6,0х7,5м
Площадь
65 м 2
Размер дома:
Этажей:
2
Спален:
2
Санузел:
0
Гараж:
Нет
Баня:
Нет
Терраса:
Нет
Панорамные окна:
Нет
Мастер-спальня:
Нет
О проекте
Вы оцените преимущества тщательно продуманной системы естественного освещения. Всё продумано на 74 м²: от прихожей до спальни. Материал кровли — ондулин, что добавляет зданию индивидуальность. Архитектура выполнена в стиле дома в классическом стиле. Наличие 2 спальни удовлетворит запросы семьи с детьми.Характеристики
- Общая площадь: 65 м2
- Количество этажей: 2
- Стиль, разновидность: Дома в ином стиле
- Форма: Прямоугольные дома
- Тип кровли: Дома с иной крышей
- Отделка: Без отделки





