Проект двухэтажного дома Дача из профилированного бруса Теремок-91
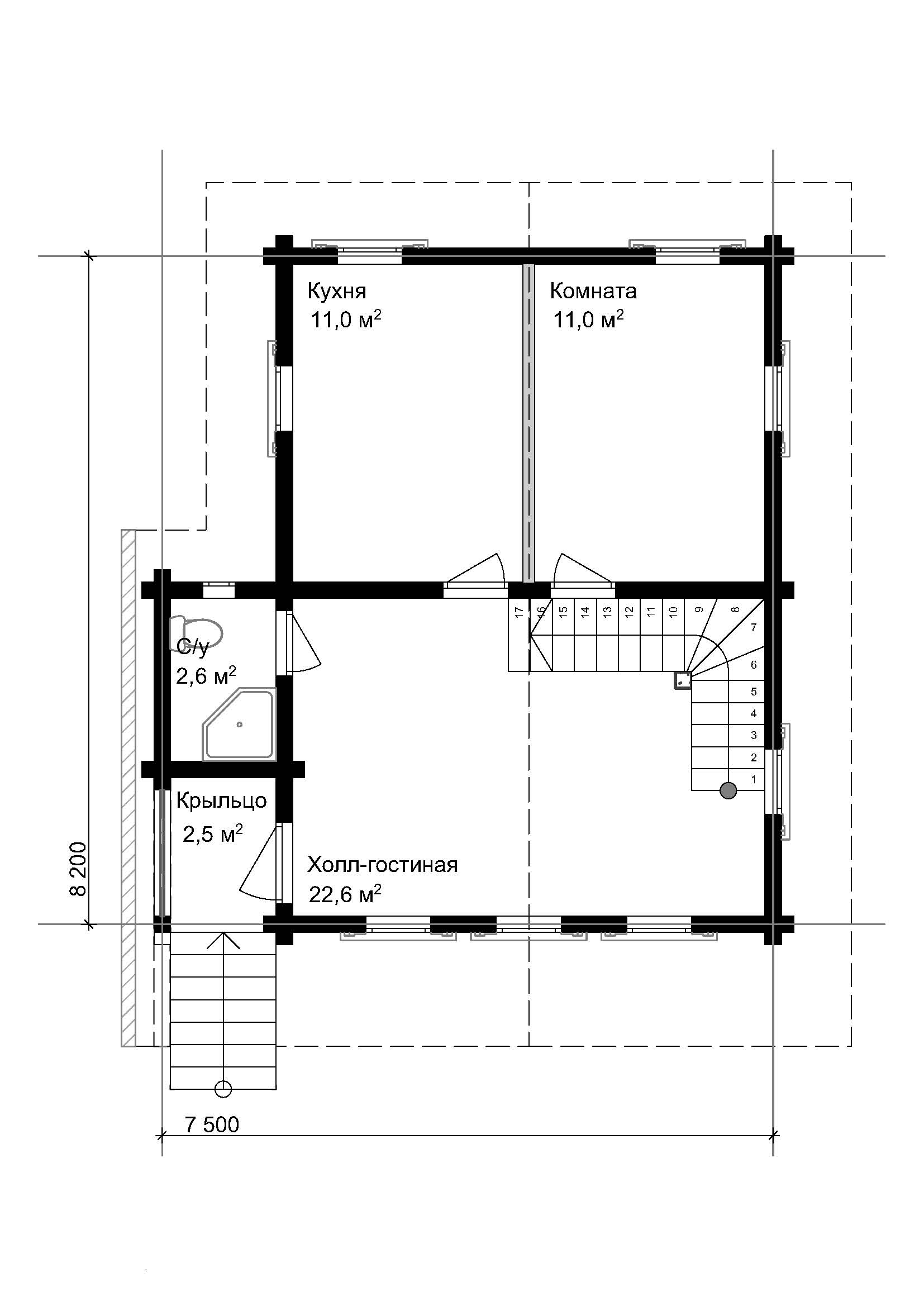
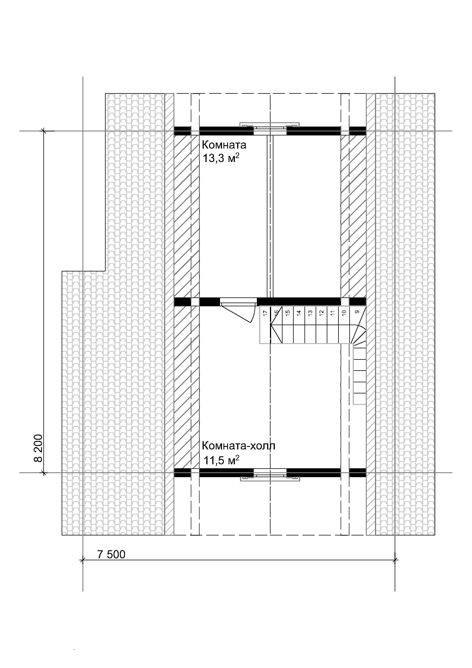
Площадь
91 м 2
Размер дома:
7x8
Этажей:
2
Спален:
3
Санузел:
0
Гараж:
Нет
Баня:
Нет
Терраса:
Нет
Панорамные окна:
Нет
Мастер-спальня:
Нет
О проекте
Уникальная концепция, объединяющая простоту и инновации. Площадь в 76 м² позволяет чувствовать себя свободно. Проект включает 2 спальни — удобно для семьи. Стены из бруса хорошо держат тепло и защищают от шума. Рубероид придаёт дому выразительность и надёжность.Характеристики
- Общая площадь: 91 м2
- Количество этажей: 2
- Стиль, разновидность: Дома в стиле Русский
- Форма: Квадратные дома
- Тип кровли: Дома с двускатной крышей
- Отделка: Без отделки
- Размер: 7x8
Отправьте свои контакты и мы расчитаем вам смету
Скорее всего вам подойдут следующие проекты домов:
Дом подходит для:
Дом подходит для:
Дом подходит для:














