Проект двухэтажного дома Дом из бруса Выкса-94
Площадь
94 м 2
Размер дома:
Этажей:
2
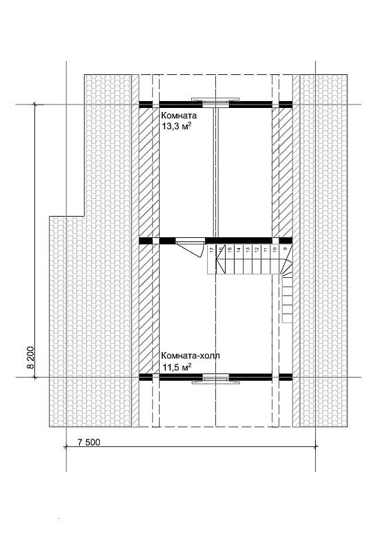
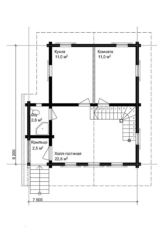
Спален:
3
Санузел:
0
Гараж:
Нет
Баня:
Нет
Терраса:
Нет
Панорамные окна:
Нет
Мастер-спальня:
Нет
О проекте
Дом, где каждая деталь продумана для вашего удобства.170 м² жилой зоны подойдут как для семьи, так и для пары. Наличие 3 спальни удовлетворит запросы семьи с детьми. Двухэтажная рациональная планировка обеспечивает комфортную навигацию внутри дома. Дом спроектирован в духе дома в стиле русский.Характеристики
- Общая площадь: 94 м2
- Количество этажей: 2
- Стиль, разновидность: Дома в стиле Русский
- Форма: Прямоугольные дома
- Тип кровли: Дома с мансардной крышей
- Отделка: Без отделки
Отправьте свои контакты и мы расчитаем вам смету
Скорее всего вам подойдут следующие проекты домов:
Дом подходит для:
Дом подходит для:
Проект двухэтажного дома Дача из профилированного бруса Теремок-91
Семья с двумя детьми
Дом подходит для:
Дом подходит для:












