Проект двухэтажного дома ДК-181
Дом подходит для:
Площадь
160 м 2
Размер дома:
12х7,5
Этажей:
2
Спален:
4
Санузел:
2
Гараж:
Нет
Баня:
Нет
Терраса:
Нет
Панорамные окна:
Нет
Мастер-спальня:
Нет
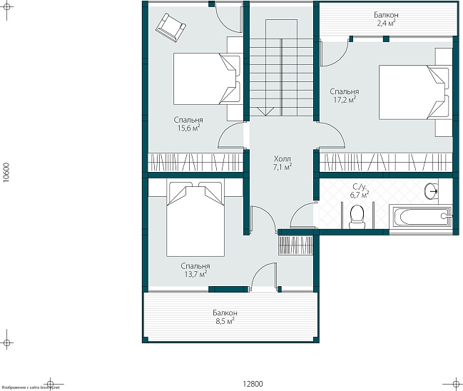
Планировка
Характеристики
- Общая площадь: 160 м2
- Жилая площадь: 121 м2
- Количество этажей: 2
- Гараж: нет
- Площадь кровли: 164 м2
- Отделка: С инженерными коммуникациями
- Фундамент: Дома со свайным фундаментом
Материалы и перечень работ
- Вид фундамента: винтовые сваи
- Обвязочный брус Сухой брус 150х150мм.
- Черновые полы Сухая доска 25х100мм.
- Стены наружные Сухая доска 40х150мм.
- Лаги потолка Сухая доска 40х150мм.
- Перегородки внутренние Сухая доска 40х100мм.
- Стропильная система Сухая доска 40х150мм.
- Обрешетка Сухая доска 25х100мм.
- Контробрешетка Сухой брусок 50х50мм
- Кровельное покрытие Металлочерепица Супермонтеррей
- Пароизоляционная пленка Ондутис Smart B
- Оконные блоки и балконная дверь Двухкамерные стеклопакеты ПВХ
- Аксессуары к оконным блокам Отливы внешние
- Входные дверные блоки Металлическая Россия
- Вентиляция Приточные клапана на Кухне, Сан. узле
- Электропроводка Розетки, выключатели, лампы, распределительный щиток
- Автономная канализация Станция биологической очистки ST-4
- Водоснабжение (трубы) Разводка ХВС, ГВС и канализации
- Водоснабжение (бойлер) Бойлер электрический 100 л
- Внутренняя контробрешетка Сухая рейка 25х50мм.
- Вид фундамента: винтовые сваи
- Обвязочный брус Сухой брус 150х150мм.
- Черновые полы Сухая доска 25х100мм.
- Стены наружные Сухая доска 40х150мм.
- Лаги потолка Сухая доска 40х150мм.
- Перегородки внутренние Сухая доска 40х100мм.
- Стропильная система Сухая доска 40х150мм.
- Обрешетка Сухая доска 25х100мм.
- Контробрешетка Сухой брусок 50х50мм
- Кровельное покрытие Металлочерепица Супермонтеррей
- Пароизоляционная пленка Ондутис Smart B
- Оконные блоки и балконная дверь Двухкамерные стеклопакеты ПВХ
- Аксессуары к оконным блокам Отливы внешние
- Входные дверные блоки Металлическая Россия
- Вентиляция Приточные клапана на Кухне, Сан. узле
- Электропроводка Розетки, выключатели, лампы, распределительный щиток
- Автономная канализация Станция биологической очистки ST-4
- Водоснабжение (трубы) Разводка ХВС, ГВС и канализации
- Водоснабжение (бойлер) Бойлер электрический 100 л
- Внутренняя контробрешетка Сухая рейка 25х50мм.
Что еще входит в стоимость:
Отправьте свои контакты и мы расчитаем вам смету
Скорее всего вам подойдут следующие проекты домов:
Дом подходит для:
Дом подходит для:
Дом подходит для:













