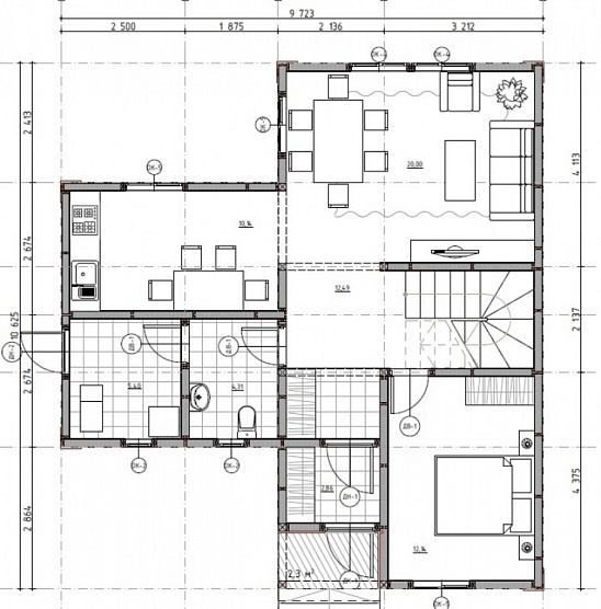
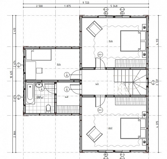
Проект двухэтажного дома Дом 8х9 К19
Площадь
140 м 2
Размер дома:
8x9
Этажей:
2
Спален:
3
Санузел:
0
Гараж:
Нет
Баня:
Нет
Терраса:
Нет
Панорамные окна:
Нет
Мастер-спальня:
Нет
О проекте
Здесь даже тишина звучит уютно.Всё продумано на 140 м²: от прихожей до спальни. В качестве кровли использована ондулин — материал, проверенный временем. Выбор каркаса обусловлен его теплоизоляционными свойствами. Дом спроектирован в духе дома в классическом стиле.Характеристики
- Общая площадь: 140 м2
- Количество этажей: 2
- Стиль, разновидность: Дома в ином стиле
- Форма: Прямоугольные дома
- Тип кровли: Дома с иной крышей
- Отделка: Без отделки
- Размер: 8x9









