Проект двухэтажного дома Дом id-115507
Дом подходит для:
Площадь
281 м 2
Размер дома:
20x11
Этажей:
2
Спален:
5
Санузел:
3
Гараж:
Нет
Баня:
Нет
Терраса:
Нет
Панорамные окна:
Нет
Мастер-спальня:
Нет
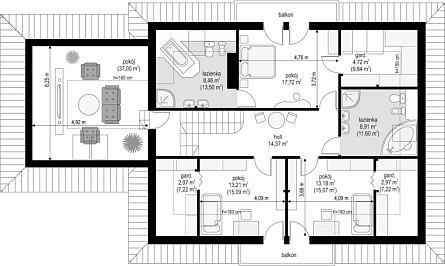
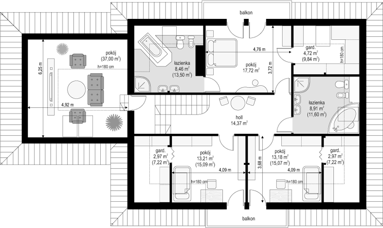
Планировка
Характеристики
- Общая площадь: 281 м2
- Жилая площадь: 183 м2
- Количество этажей: 2
- Гараж: На 2 машины
- Площадь кровли: 301 м2
- Размер: 20x11
- Фундамент: Дома с ленточным фундаментом
Отправьте свои контакты и мы расчитаем вам смету
Скорее всего вам подойдут следующие проекты домов:
Проект двухэтажного дома Дом id-114292
Для большой семьи
Дом подходит для:
Дом подходит для:
Проект двухэтажного дома Дом id-115385
Для большой семьи
Дом подходит для:
Дом подходит для:
Проект двухэтажного дома Дом id-124607
Для большой семьи
Дом подходит для:
Дом подходит для:





















