Проект двухэтажного дома Дом id-124229
Дом подходит для:
Площадь
445 м 2
Размер дома:
17x22
Этажей:
2
Спален:
5
Санузел:
4
Гараж:
Да
Баня:
Нет
Терраса:
Нет
Панорамные окна:
Нет
Мастер-спальня:
Нет
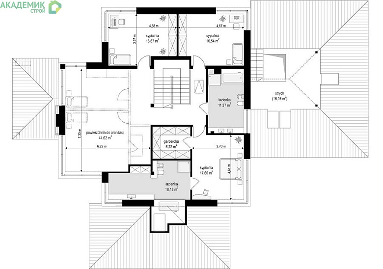
Планировка
Характеристики
- Общая площадь: 445 м2
- Жилая площадь: 324 м2
- Количество этажей: 2
- Гараж: На 2 машины
- Площадь кровли: 377,88 м2
- Размер: 17x22
- Фундамент: Дома с ленточным фундаментом
Отправьте свои контакты и мы расчитаем вам смету
Скорее всего вам подойдут следующие проекты домов:
Дом подходит для:
Проект двухэтажного дома Дом id-35230
Для большой семьи
Дом подходит для:
Дом подходит для:
Проект двухэтажного дома Дом id-93783
Для большой семьи
Дом подходит для:
Дом подходит для:
























