Проект двухэтажного дома Дом id-93783
Дом подходит для:
Площадь
441 м 2
Размер дома:
24x18
Этажей:
2
Спален:
4
Санузел:
3
Гараж:
Нет
Баня:
Нет
Терраса:
Нет
Панорамные окна:
Нет
Мастер-спальня:
Нет
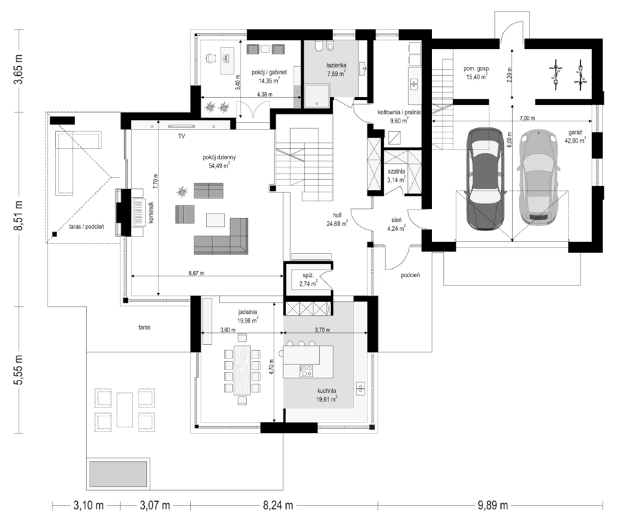
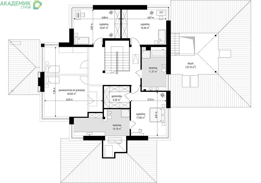
Планировка
Характеристики
- Общая площадь: 441 м2
- Жилая площадь: 282 м2
- Количество этажей: 2
- Гараж: На 2 машины
- Площадь кровли: 419,40 м2
- Размер: 24x18
- Фундамент: Дома с ленточным фундаментом
Отправьте свои контакты и мы расчитаем вам смету
Скорее всего вам подойдут следующие проекты домов:
Проект двухэтажного дома Дом id-112234
Для большой семьи
Дом подходит для:
Дом подходит для:
Проект двухэтажного дома Дом id-124229
Для большой семьи
Дом подходит для:
Дом подходит для:
Дом подходит для:


























