Проект двухэтажного дома Дом id-50732
Дом подходит для:
Площадь
0 м 2
Размер дома:
18x10
Этажей:
2
Спален:
4
Санузел:
2
Гараж:
Нет
Баня:
Нет
Терраса:
Нет
Панорамные окна:
Нет
Мастер-спальня:
Нет
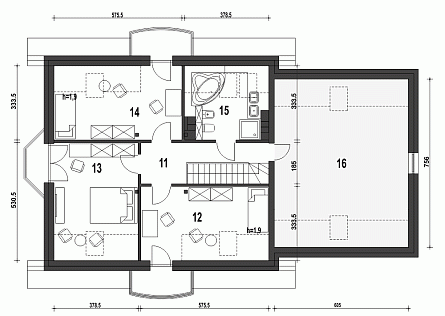
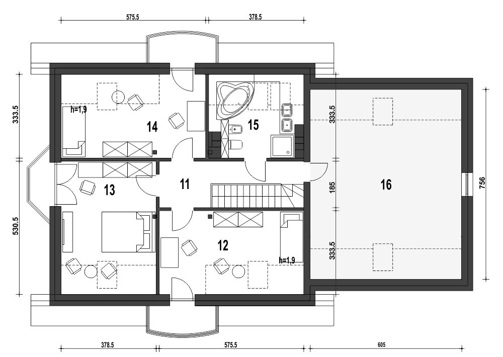
Планировка
Характеристики
- Жилая площадь: 134 м2
- Количество этажей: 2
- Гараж: На 2 машины
- Площадь кровли: 242,50 м2
- Размер: 18x10
- Фундамент: Дома с ленточным фундаментом
Отправьте свои контакты и мы расчитаем вам смету
Скорее всего вам подойдут следующие проекты домов:
Проект двухэтажного дома Дабл
Семья с двумя детьми
Дом подходит для:
Дом подходит для:
Проект двухэтажного дома Дом id-68694
Семья с двумя детьми
Дом подходит для:
Дом подходит для:
Проект двухэтажного дома Дом id-88554
Семья с двумя детьми
Дом подходит для:
Дом подходит для:














