Проект двухэтажного дома Дом id-69042
Дом подходит для:
Площадь
458 м 2
Размер дома:
20x18
Этажей:
2
Спален:
5
Санузел:
4
Гараж:
Нет
Баня:
Нет
Терраса:
Нет
Панорамные окна:
Нет
Мастер-спальня:
Нет
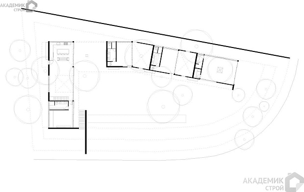
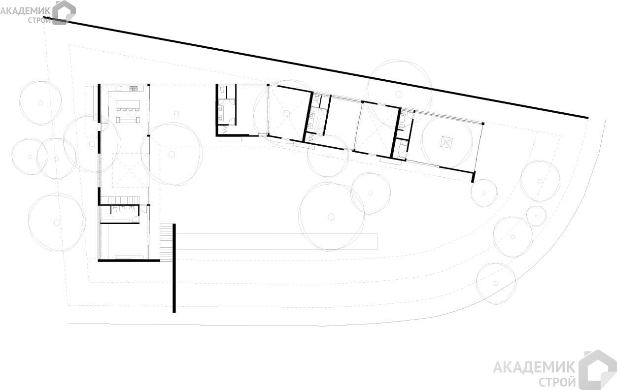
Планировка
Фасады
О проекте
Двухэтажный дом площадью 299 м² с пятью комнатами и четырьмя санузлами идеально подойдет для большой семьи. Гараж на три машины станет отличным решением для владельцев нескольких автомобилей. Просторные помещения позволяют создать зоны для отдыха, работы и развлечений. Газобетонные стены обеспечивают тепло и долговечность.Гарантии: 16 лет гарантии
Характеристики
- Общая площадь: 458 м2
- Жилая площадь: 299 м2
- Количество этажей: 2
- Гараж: На 3 машины
- Площадь кровли: 460 м2
- Размер: 20x18
- Фундамент: Дома с ленточным фундаментом
Отправьте свои контакты и мы расчитаем вам смету
Скорее всего вам подойдут следующие проекты домов:
Проект двухэтажного дома Дом id-124229
Для большой семьи
Дом подходит для:
Дом подходит для:
Дом подходит для:
Проект двухэтажного дома Дом id-35230
Для большой семьи
Дом подходит для:
Дом подходит для:

























