Проект двухэтажного дома Дом id-69061
Дом подходит для:
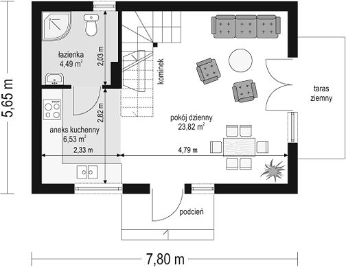
Площадь
60 м 2
Размер дома:
10x8
Этажей:
2
Спален:
2
Санузел:
1
Гараж:
Нет
Баня:
Нет
Терраса:
Нет
Панорамные окна:
Нет
Мастер-спальня:
Нет
Планировка
Характеристики
- Общая площадь: 60 м2
- Жилая площадь: 56 м2
- Количество этажей: 2
- Гараж: Без гаража
- Размер: 10x8
- Фундамент: Дома с ленточным фундаментом
Отправьте свои контакты и мы расчитаем вам смету
Скорее всего вам подойдут следующие проекты домов:
Проект двухэтажного дома Дом id-124616
Семья с одним ребенком
Дом подходит для:
Дом подходит для:
Проект двухэтажного дома Дом id-83887
Семья с одним ребенком
Дом подходит для:
Дом подходит для:
Дом подходит для:























