Проект двухэтажного дома Дом id-72159
Дом подходит для:
Площадь
305 м 2
Размер дома:
9x26
Этажей:
2
Спален:
5
Санузел:
2
Гараж:
Нет
Баня:
Нет
Терраса:
Нет
Панорамные окна:
Нет
Мастер-спальня:
Нет
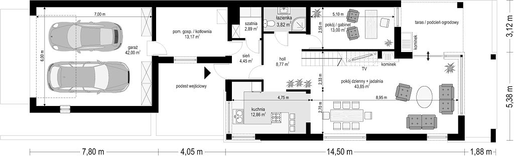
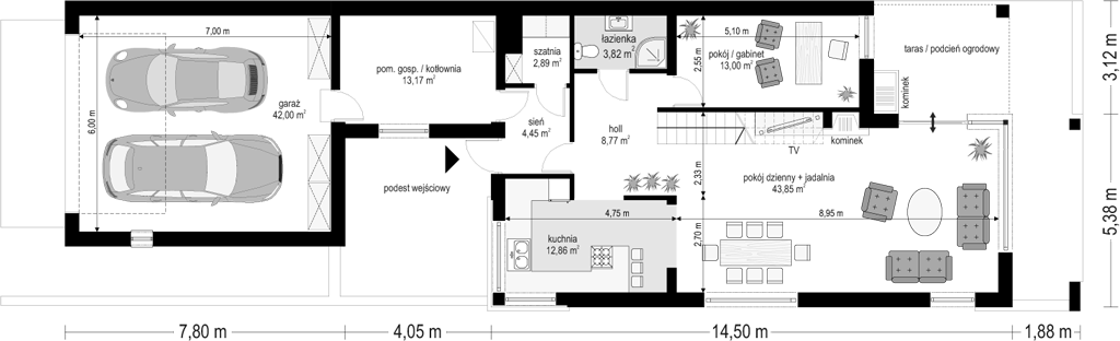
Планировка
Фасады
О проекте
Двухэтажный дом из газобетона площадью 305 м² с жилой зоной 166 м² предлагает комфортное проживание для большой семьи. Пять спален, два санузла и гараж на две машины обеспечивают все необходимое. Ленточный фундамент и металлочерепичная кровля подчеркивают надежность.Гарантии: 16 лет гарантии
Характеристики
- Общая площадь: 305 м2
- Жилая площадь: 166 м2
- Количество этажей: 2
- Гараж: На 2 машины
- Площадь кровли: 242,40 м2
- Размер: 9x26
- Фундамент: Дома с ленточным фундаментом
Отправьте свои контакты и мы расчитаем вам смету
Скорее всего вам подойдут следующие проекты домов:
Проект двухэтажного дома Дом id-115385
Для большой семьи
Дом подходит для:
Дом подходит для:
Проект двухэтажного дома Дом id-115538
Для большой семьи
Дом подходит для:
Дом подходит для:
Проект двухэтажного дома Дом id-115507
Для большой семьи
Дом подходит для:
Дом подходит для:

























