Проект двухэтажного дома Дом id-72905
Дом подходит для:
Площадь
260 м 2
Размер дома:
10x16
Этажей:
2
Спален:
2
Санузел:
3
Гараж:
Нет
Баня:
Нет
Терраса:
Нет
Панорамные окна:
Нет
Мастер-спальня:
Нет
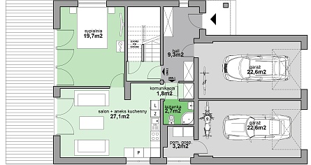
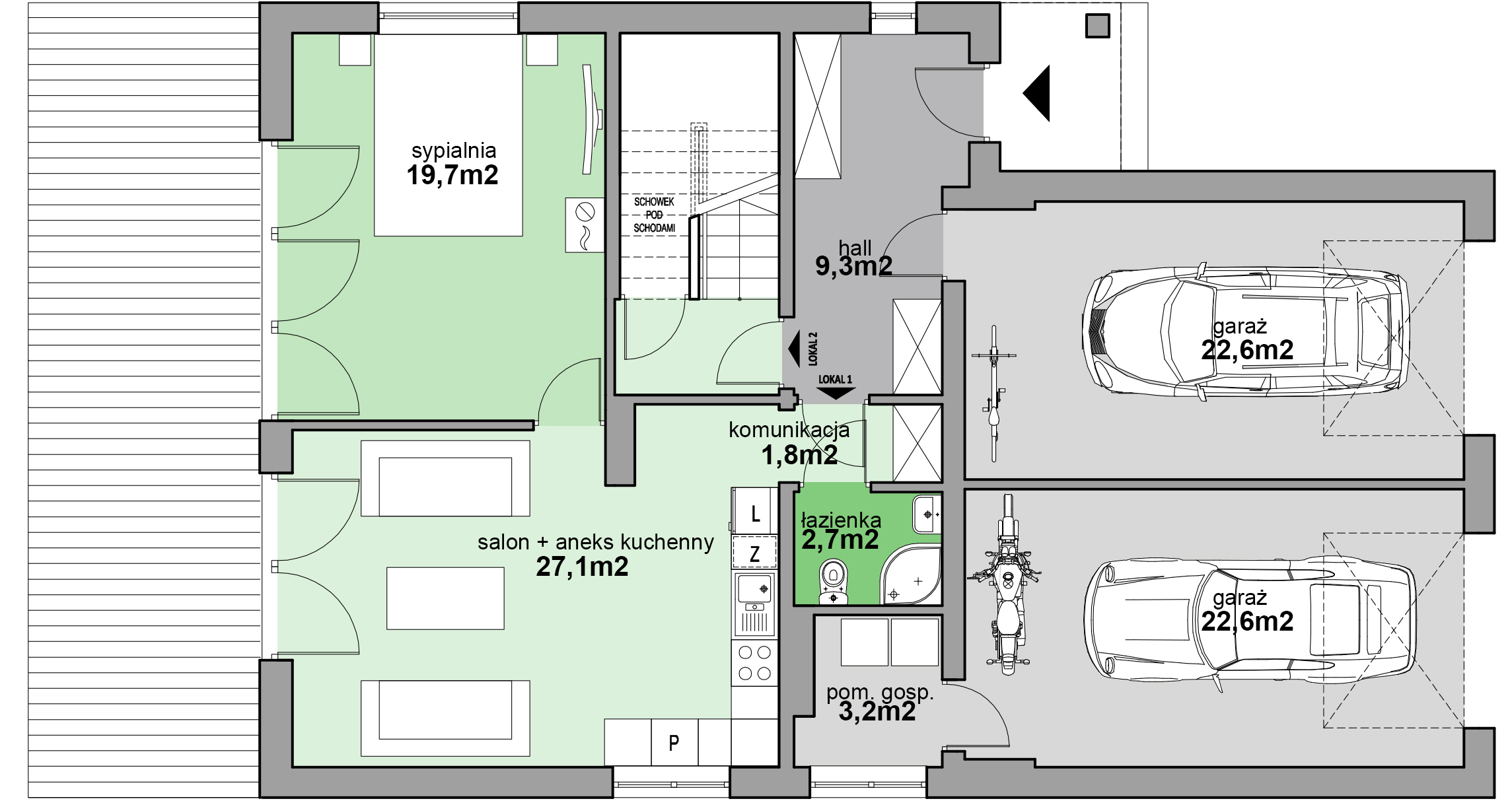
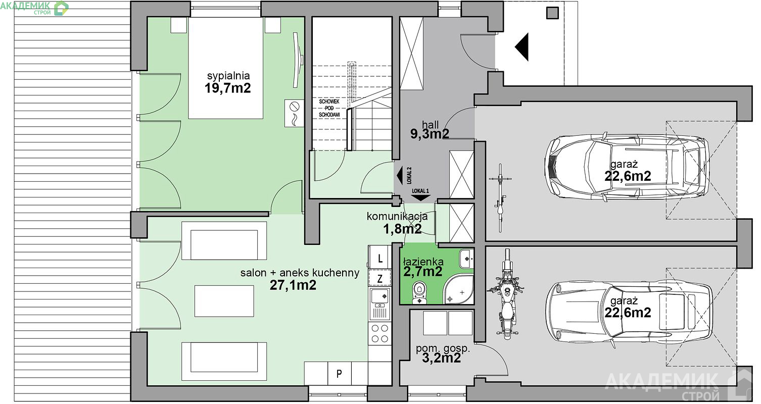
Планировка
Характеристики
- Общая площадь: 260 м2
- Жилая площадь: 135 м2
- Количество этажей: 2
- Гараж: На 2 машины
- Размер: 10x16
- Фундамент: Дома с ленточным фундаментом
Отправьте свои контакты и мы расчитаем вам смету
Скорее всего вам подойдут следующие проекты домов:
Проект двухэтажного дома Дом id-116813
Для большой семьи
Дом подходит для:
Дом подходит для:
Проект двухэтажного дома Дом id-112419
Семья с двумя детьми
Дом подходит для:
Дом подходит для:
Проект двухэтажного дома Дом id-117407
Для большой семьи
Дом подходит для:
Дом подходит для:


























