Проект двухэтажного дома Дом id-96490
Дом подходит для:
Площадь
203 м 2
Размер дома:
10x10
Этажей:
2
Спален:
4
Санузел:
2
Гараж:
Нет
Баня:
Нет
Терраса:
Нет
Панорамные окна:
Нет
Мастер-спальня:
Нет
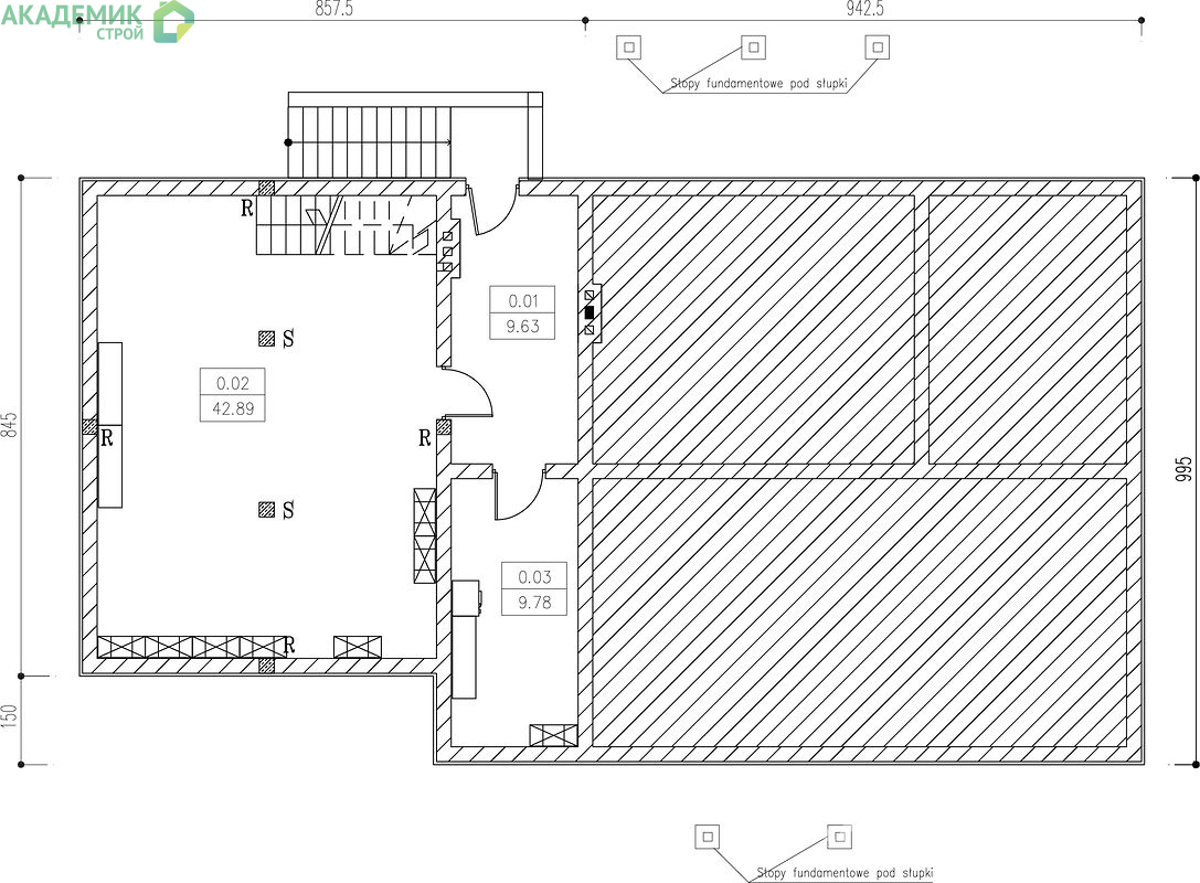
Планировка
Характеристики
- Общая площадь: 203 м2
- Жилая площадь: 138 м2
- Количество этажей: 2
- Гараж: Без гаража
- Площадь кровли: 188,32 м2
- Размер: 10x10
- Фундамент: Дома с ленточным фундаментом
Отправьте свои контакты и мы расчитаем вам смету
Скорее всего вам подойдут следующие проекты домов:
Проект двухэтажного дома Дом id-119812
Для большой семьи
Дом подходит для:
Дом подходит для:
Проект двухэтажного дома Дом id-112780
Для большой семьи
Дом подходит для:
Дом подходит для:
Проект двухэтажного дома Дом id-110766
Семья с двумя детьми
Дом подходит для:
Дом подходит для:






















